Other areas · Las Palas Chalet · Obra Nueva

€320,000
Ref: 00-53628
Volver

Other areas · Las Palas Chalet · Obra Nueva · Ref: 00-53628

Volver
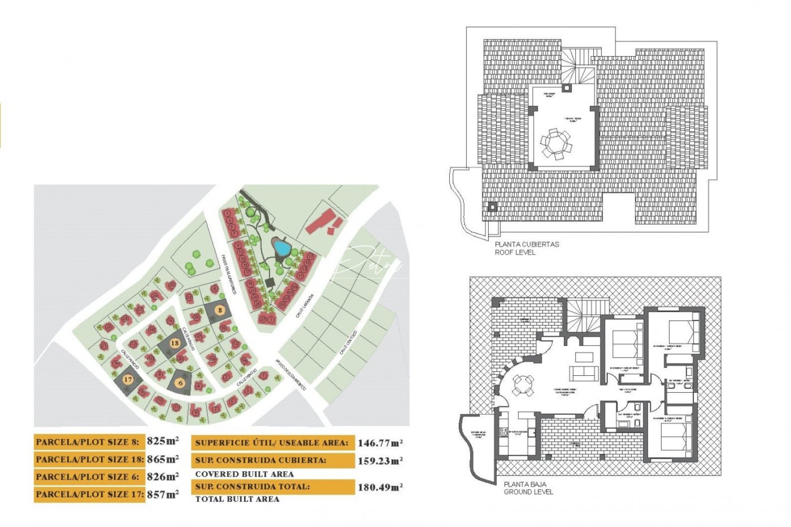
  • 180m2 m2 Construidos
  • 850m2 m2 Parcela
  • 3 Habitaciones
  • 2 Baños
Key ready
Garden
Gated
Number of Parking Spaces: 1
Near Golf / Golf Resort Property
Location: Coastal
Beach: 7500 Meters
Useable Build Space: 144 Msq.
Parking - Space
Double Bedrooms: 3
Solarium: Yes
Air Conditioning: Pre-Installed
Terrace: 45 Msq.
Storage / Trastero
Calificación energética: B

¿Te interesa? Realizar una consulta

Responsable del tratamiento: Petra Hönig, Finalidad del tratamiento: Gestión y control de los servicios ofrecidos a través de la página Web de Servicios inmobiliarios, Envío de información a traves de newsletter y otros, Legitimación: Por consentimiento, Destinatarios: No se cederan los datos, salvo para elaborar contabilidad, Derechos de las personas interesadas: Acceder, rectificar y suprimir los datos, solicitar la portabilidad de los mismos, oponerse altratamiento y solicitar la limitación de éste, Procedencia de los datos: El Propio interesado, Información Adicional: Puede consultarse la información adicional y detallada sobre protección de datos Aquí.
Contactar por WhatsApp
Petra Hönig

Suscríbete a nuestro boletín

¿Quieres recibir nuestras últimas propiedades en venta y ofertas especiales?

facebook youtube twitter
WhatsApp