Nieuwbouwwoning met luxe villa met uitzicht op zee in La Alberca Polop
Eigentijds ontwerp in een rustige bergachtige omgeving
Deze uitzonderlijke nieuwbouwwoning is gelegen in La Alberca, een rustige woonwijk in de bergen van Polop. Omgeven door bos en natuur biedt het pand een panoramisch uitzicht op de Middellandse Zee, de bergen en het historische stadje Polop. De villa is ontworpen met verticale architectonische elegantie en combineert privacy, functionaliteit en naadloos binnen- en buitenleven.
Polop is een charmant dorpje aan de Costa Blanca dat bekend staat om zijn traditionele sfeer en natuurlijke schoonheid. De villa ligt dicht bij alle voorzieningen in La Nucia, waaronder winkels, restaurants, sportcentra en scholen. De stranden en levendige kustplaatsen zoals Benidorm en Altea liggen op slechts 15 minuten afstand.
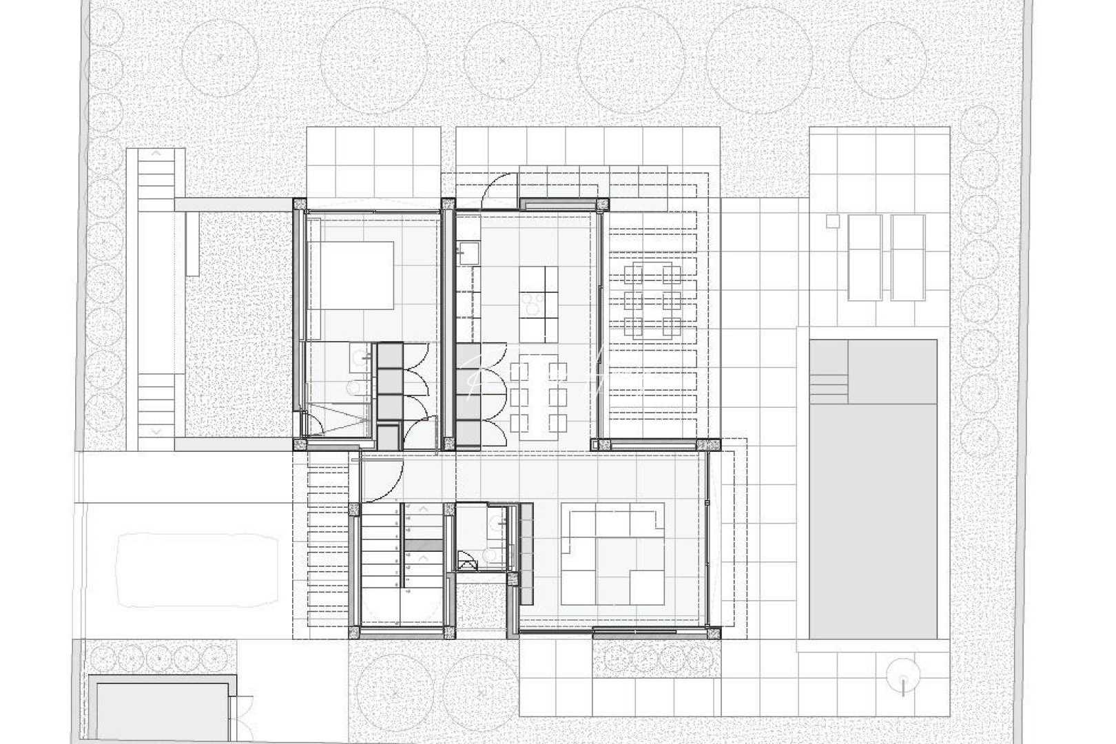
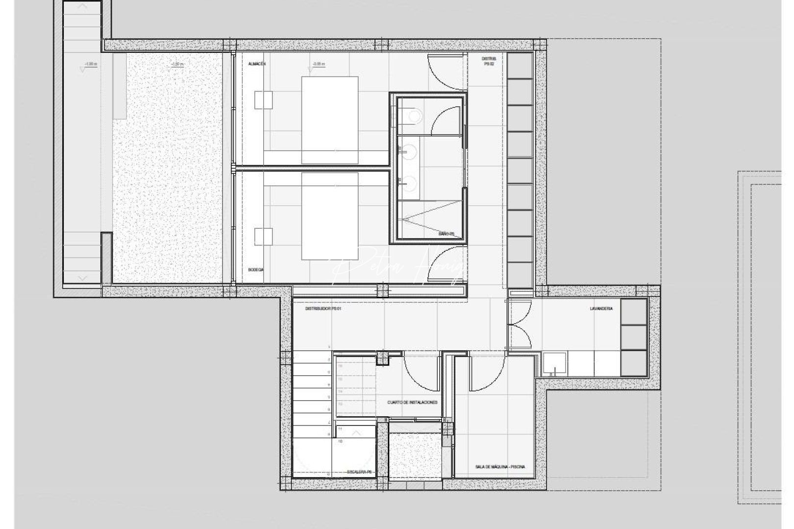
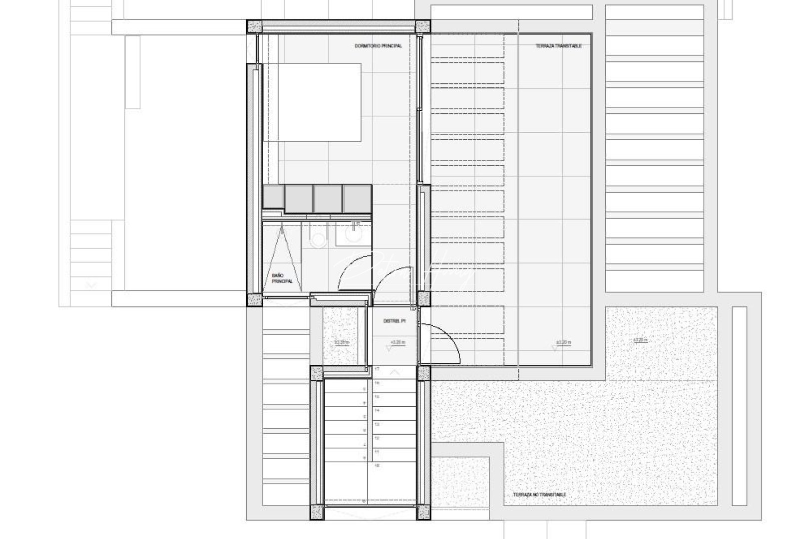
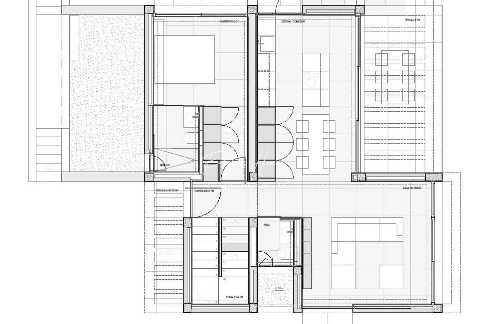
Doordacht ontworpen indeling over drie verdiepingen
De begane grond verwelkomt u met een inkomhal met ingebouwde kledingkast en gastentoilet. Op deze verdieping bevindt zich een slaapkamer met eigen badkamer en kamerhoge schuifdeuren die uitkomen op een privéterras aan de zijkant. De lichte open woon- en eetkamer sluit direct aan op een terras met pergola en het privé zoutwaterzwembad, waardoor een harmonieuze levensstijl binnen en buiten ontstaat.
De bovenste verdieping is exclusief bestemd voor de master suite. Deze privéverdieping biedt een slaapkamer met eigen badkamer en toegang tot een spectaculair terras van 40 m² en een adembenemend panoramisch uitzicht op zee en de bergen, wat maximale privacy en comfort garandeert.
De kelderverdieping beschikt over twee extra slaapkamers met grote ramen die uitkijken op een prachtig ontworpen verzonken binnenplaats die de ruimte met natuurlijk licht vult. Een gedeelde badkamer, een volledig uitgeruste wasruimte met Haier-apparatuur en twee ruime technische en opslagruimtes maken deze verdieping compleet.
Premium voorzieningen en energie-efficiëntie
De villa is voorzien van hoogwaardige afwerkingen en geavanceerde systemen, zoals:
Centrale eilandkeuken met geïntegreerde BOSCH-apparatuur
Natuurstenen werkbladen binnen en buiten
Panoramische ramen met zonwerend versterkt glas
Mitsubishi aerothermisch airconditioningsysteem
Voorbereiding voor vloerverwarming
Energie-efficiëntieklasse A
Voorbereiding voor smart home-systeem
Privé parkeerplaats voor twee voertuigen
De aangelegde mediterrane tuin met automatische irrigatie en een elegante binnenplaats op een lager niveau zorgen voor meer privacy en ontspanning. Het dak is voorbereid voor de installatie van zonnepanelen.
Uitstekende locatie en afstanden
Centrum van Polop 2 km
La Nucia 4 km
Stranden van Benidorm 12 km
Altea 10 km
Villaitana Golf 14 km
Luchthaven Alicante 65 km
Ontdek uw privétoevluchtsoord in Polop
Deze moderne villa met zeezicht biedt design, privacy en comfort in een van de mooiste natuurlijke omgevingen aan de Costa Blanca. Neem vandaag nog contact met ons op voor een privébezichtiging en verzeker u van uw nieuwe woning in La Alberca Polop.