Nybyggede villaer med privat pool i Daya Nueva, Costa Blanca
Moderne dobbelthuse og fritliggende villaer med fremragende design
Oplev dette eksklusive projekt med tre nybyggede villaer, både dobbelthuse og fritliggende, beliggende i den charmerende landsby Daya Nueva i den sydlige del af Alicante-provinsen. Disse stilfulde ejendomme er designet med komfort, lys og privatliv for øje og tilbyder en enestående boligoplevelse kun få minutter fra strandene i La Marina og Guardamar del Segura.
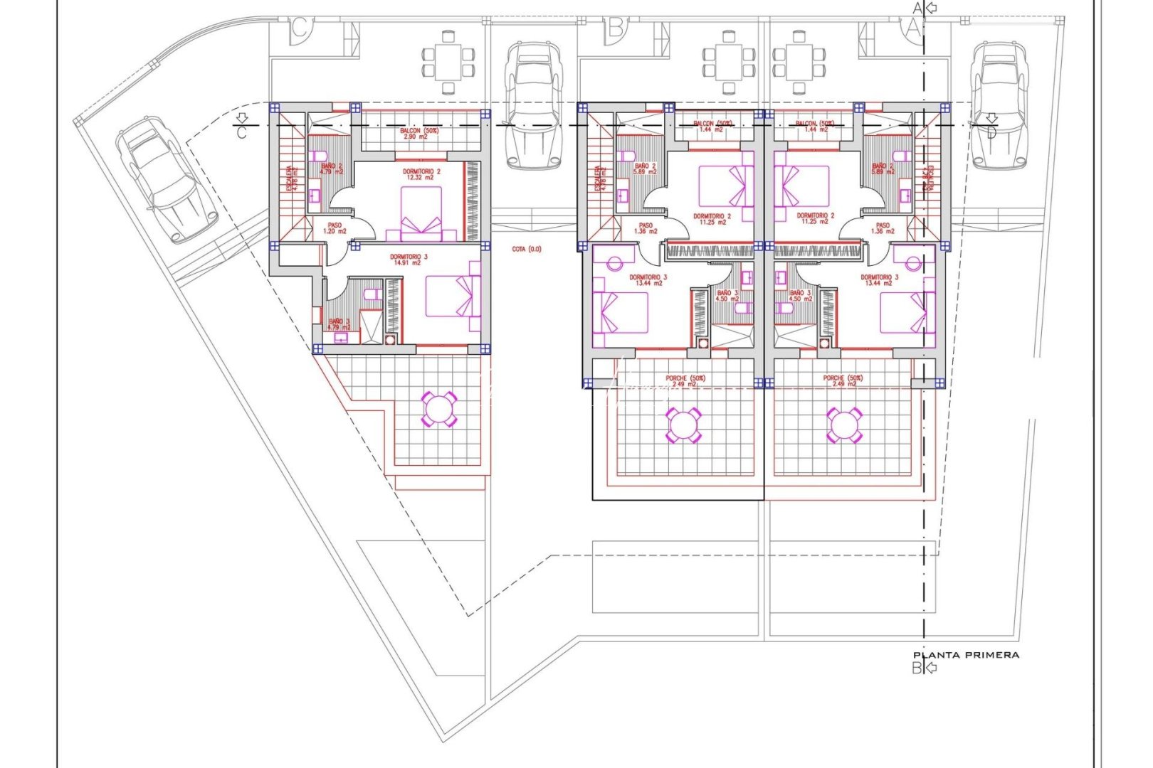
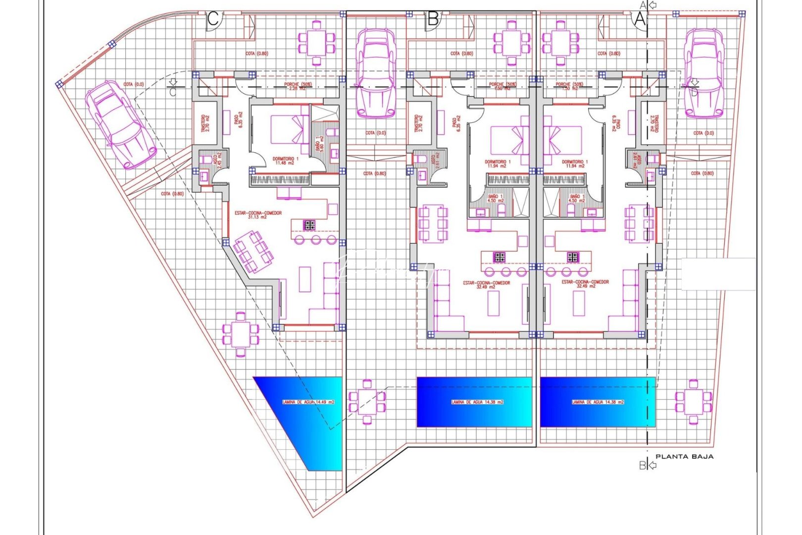
Hver villa har en lys og rummelig stue-spisestue, et åbent køkken med morgenmadsbar, tre soveværelser, tre badeværelser og et gæstetoilet. Nyd det middelhavsklima på de to øverste terrasser, slap af ved din private swimmingpool eller parkér bekvemt på din egen grund.
Komfort og kvalitet i alle detaljer
Disse boliger er designet til at maksimere naturligt lys og udendørslivet. Nøglefunktioner inkluderer:
Privat swimmingpool og parkering på grunden
To uoverdækkede terrasser på øverste etage
Valgfri tagterrasse for ekstra udendørs plads (mod ekstra betaling)
Fuldt møblerede badeværelser med bruseskærme
Pre-Installation af kanaliseret aircondition
Automatiske aluminiumsjalousier i soveværelser, køkken og badeværelser
Den åbne stueetage blander køkken, spisestue og stue til et sammenhængende og lyst opholdsrum, der åbner direkte ud til terrassen og poolområdet — perfekt til afslapning eller underholdning.
Fremragende beliggenhed tæt på alle faciliteter
Disse villaer ligger i et fredeligt boligområde i Daya Nueva, kun 3 minutters gang fra byens centrum, hvor du finder butikker, restauranter og vigtige serviceydelser. Dette rolige miljø tilbyder en ideel blanding af landsbycharme og kystnærhed.
Afstande til vigtige seværdigheder:
Strandene i Guardamar del Segura og La Marina: 12 km (10 minutter)
La Marquesa Golf (Ciudad Quesada): 9 km (10 minutter)
Habaneras Shopping Center (Torrevieja): 20 km (20 minutter)
Alicante Internationale Lufthavn: 38 km (25 minutter)
Vega Baja Hospital: 14 km (15 minutter)
Dit ideelle hjem på Costa Blanca venter
Disse villaer er perfekte som permanent bolig, feriebolig eller investering. Med moderne arkitektur, gennemtænkt design og en fredelig, men alligevel godt forbundet beliggenhed er dette en unik mulighed for at eje et kvalitetsbolig på Costa Blanca. Kontakt os i dag for mere information og for at aftale et besøg.