Moderne lejligheder med fantastisk udsigt over vingården i Hondón de las Nieves
Stilfulde nybyggede lejligheder i en fredelig dal
Oplev disse moderne lejligheder i Hondón de las Nieves, en charmerende by, der ligger i en malerisk dal omgivet af olivenlunde og mandeltræer. Dette eksklusive boligkompleks tilbyder lejligheder med 1, 2 og 3 soveværelser, som alle er designet til at give komfort, energieffektivitet og en betagende udsigt over Vinalopó-vinmarkerne.
Dette rolige område ligger i Vinalopó Medio-regionen og er perfekt for dem, der søger en afslappet middelhavsstil med let adgang til naturen og vigtige tjenester.
Funktioner af høj kvalitet til et moderne liv
Hver lejlighed er bygget med førsteklasses materialer og finish, som sikrer både stil og funktionalitet:
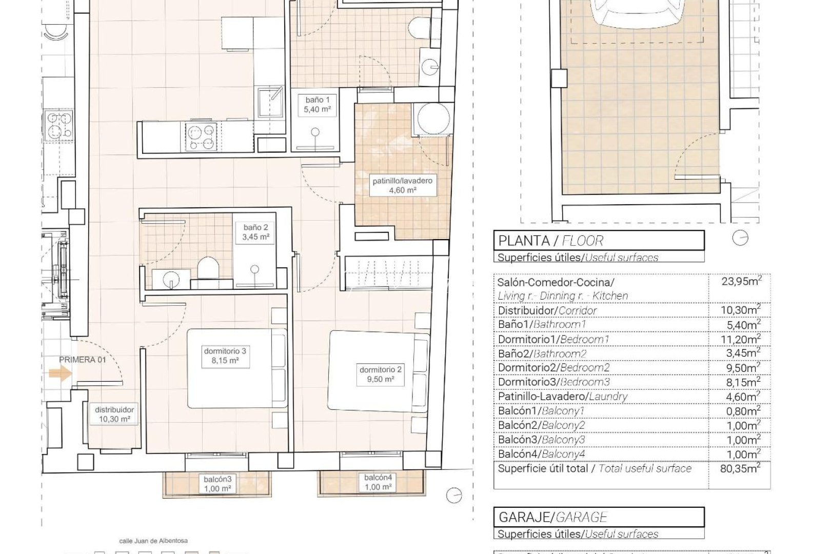
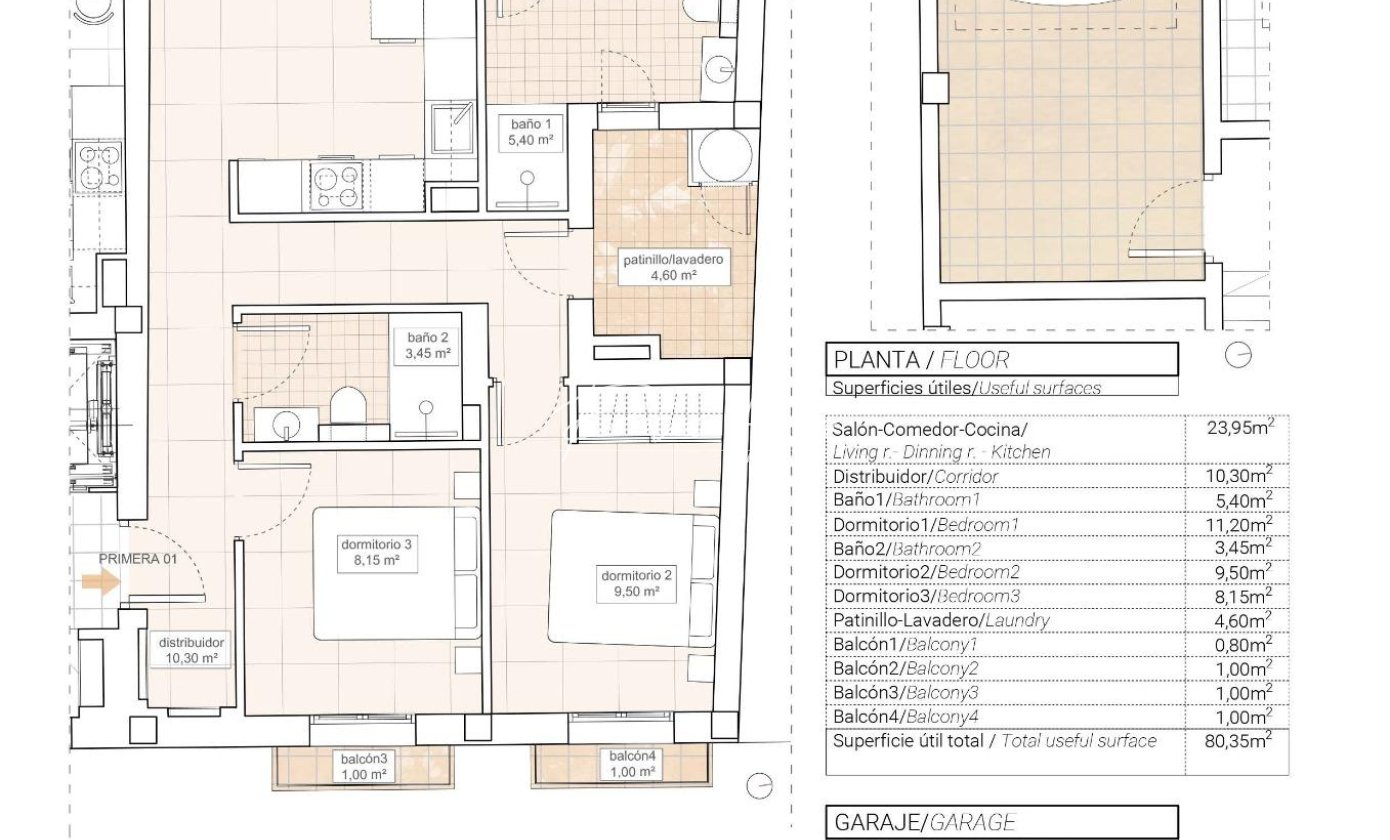
Rummelig indretning med åben planløsning.
Fuldt møblerede køkkener med bordplader i granit.
Eksklusive badeværelser med indbyggede cisterner og sanitetsarmaturer i topkvalitet.
Energieffektivt design med aerotermisk vandopvarmning.
Forudinstalleret kanaliseret aircondition for komfort året rundt.
Dobbeltglasvinduer i aluminium med varmeisolering.
Forstærket sikkerhedsindgangsdør for ekstra ro i sindet.
Privat garage i stueetagen inkluderet.
Adgang til elevator for nemheds skyld.
Derudover er der installeret solpaneler på taget for at forbedre energieffektiviteten og reducere forsyningsomkostningerne.
Førsteklasses beliggenhed i Hondón de las Nieves
Hondón de las Nieves er en charmerende spansk landsby, der er kendt for sin vinproduktion, traditionelle kultur og naturskønne landskaber. Byen har historiske bygninger, lokale markeder og naturlige vandrestier, hvilket gør den til et fantastisk sted til både permanent ophold og ferieophold.
Dette nye byggeri ligger i et fredeligt, men godt forbundet område med nem adgang til vigtige tjenester og centrale steder:
Alicante lufthavn - 30 km (30 minutters kørsel)
Alicantes strande - 35 km (35 minutters kørsel)
Elche - 20 km (20 minutters kørsel)
Naturparken Crevillente - 10 km (15 minutters kørsel)
Golfbaner - 25 km (30 minutters kørsel)
Dit perfekte hjem i hjertet af Alicantes landskab
Nyd roen i Hondón-dalen, mens du bor tæt på de pulserende byer Alicante og Elche. Uanset om du er på udkig efter en feriebolig, en investeringsejendom eller et fredeligt sted at bo året rundt, er disse moderne lejligheder det perfekte valg.
Kontakt os i dag for mere information eller for at aftale en fremvisning!