Nybyggede kvadrater og rækkehuse i Dolores
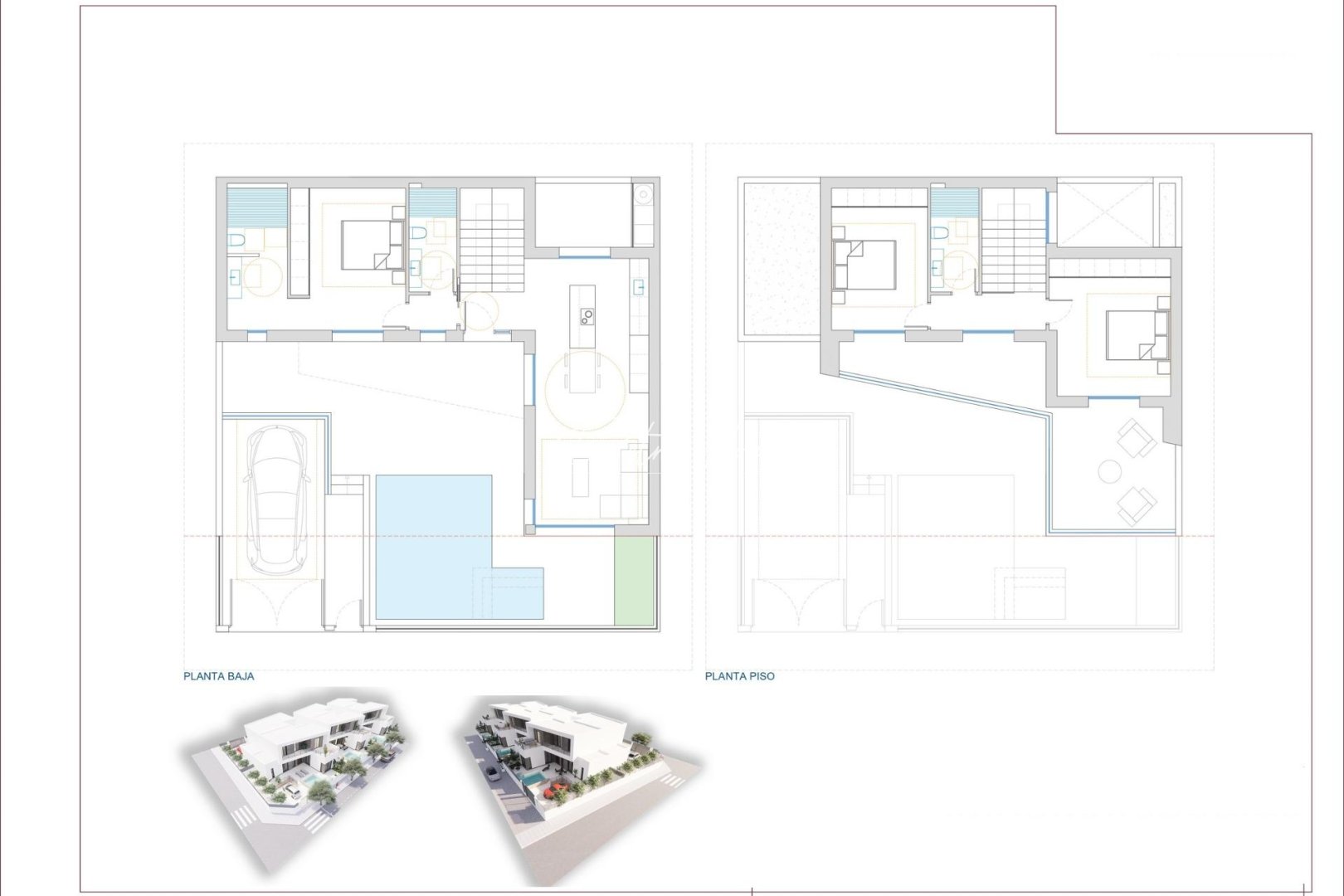
Dette moderne boligbyggeri i Dolores består af nybyggede kvadrater og rækkehuse. Hvert hjem er designet med moderne stil og komfort i tankerne og er fordelt på to etager med 3 soveværelser og 3 badeværelser. Det åbne køkken er sømløst forbundet med stuen, som fører direkte ud til en privat terrasse og have. Hvert hjem har også sin egen private pool og parkeringsplads.
Finish af høj kvalitet og moderne faciliteter
Disse boliger er bygget med materialer og finish af høj kvalitet. Det udvendige tømrerarbejde er lavet af aluminium med termisk beskyttelse, og badeværelserne har bruseafskærmninger af glas. Der er installeret LED-belysning i hele ejendommen, hvilket sikrer energieffektivitet og en moderne atmosfære. Disse funktioner skaber tilsammen et behageligt og stilfuldt boligmiljø for dig og din familie.
Førsteklasses beliggenhed nær daglige tjenester
Disse boliger ligger i udkanten af den charmerende by Dolores, kun en kort gåtur fra vigtige daglige tjenester, herunder butikker, restauranter og lokale faciliteter. Dolores er en del af Vega Baja del Segura-regionen i den sydlige del af Alicante-provinsen, der er kendt for sine landbrugslandskaber og sit afslappede livstempo.
Tæt på vigtige seværdigheder
La Marina-stranden: 10 km
Guardamar Strand: 10 km
Alicante lufthavn: 30 km
Murcia-Corvera lufthavn: 60 km
Golfbaner: 15 km
Indkøbscentre: 12 km
Perfekt til at nyde Costa Blanca-livsstilen
Med middelhavsklimaet, smukke strande kun en kort køretur væk og flere golfbaner i nærheden tilbyder dette byggeri den ideelle balance mellem afslapning og fritid. Uanset om du er på udkig efter en feriebolig eller en permanent bolig, tilbyder disse nybyggede boliger i Dolores en moderne livsstil i et fredfyldt område med gode forbindelser.