Moderne nybyggede lejligheder i hjertet af Torrevieja, kun 600 m fra havet
Eksklusivt boutique-byggeri i centrum af Torrevieja
Oplev et eksklusivt boligprojekt med kun 7 moderne nybyggede lejligheder, ideelt beliggende i det livlige centrum af Torrevieja, Alicante. Kun 600 m fra strandpromenaden kombinerer disse stilfulde boliger perfekt fordelene ved livet ved kysten med bekvemmeligheden ved en urban livsstil og tilbyder nem adgang til butikker, restauranter og fritidsaktiviteter.
Moderne design og smarte indretninger
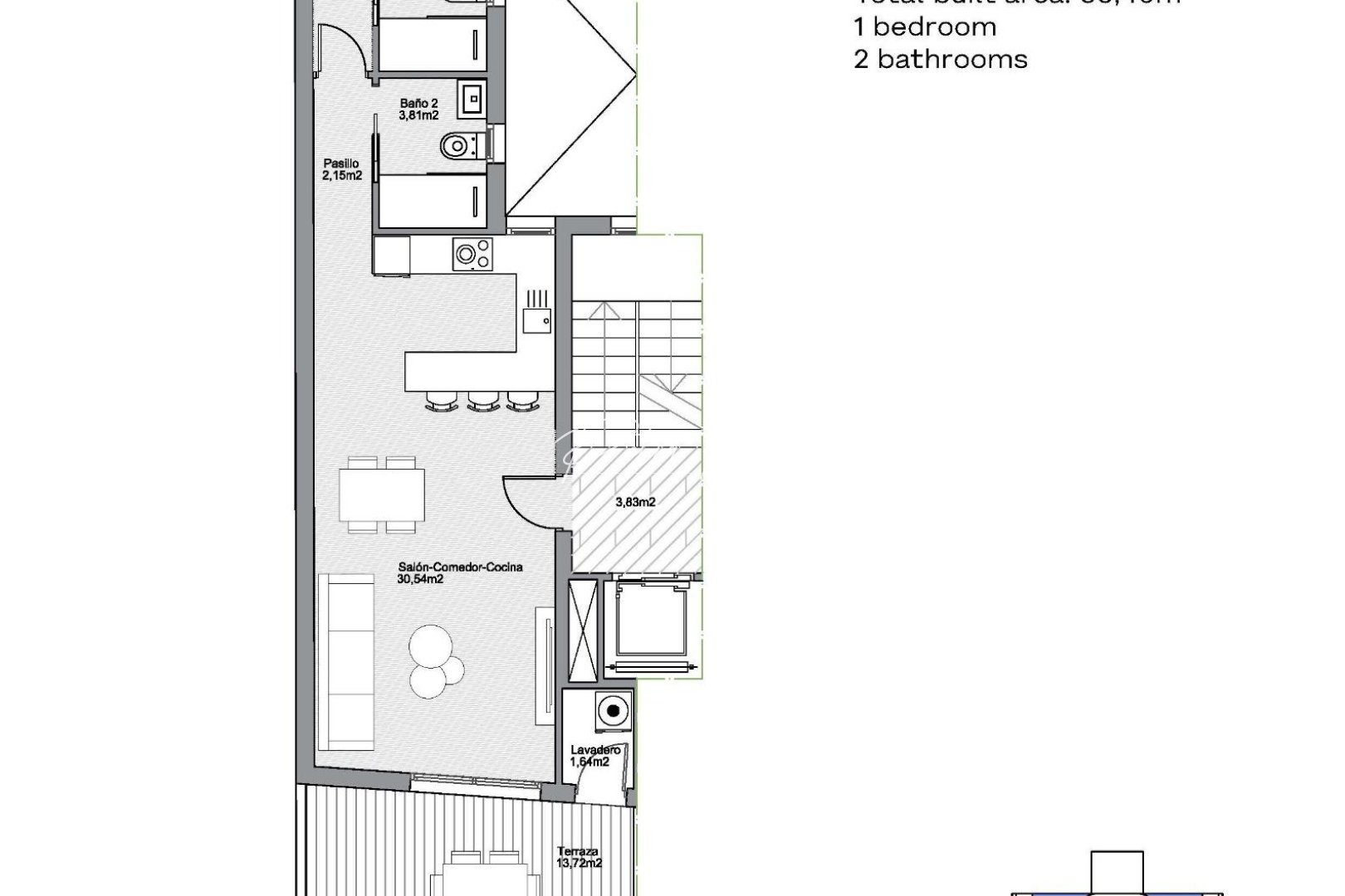
Vælg mellem lejligheder med 1 eller 2 soveværelser, hver med 2 badeværelser (det ene en-suite). De åbne indretninger er designet til at maksimere plads og naturligt lys, hvilket sikrer både komfort og funktionalitet. Førsteklasses finish såsom sikkerhedsdøre, indbyggede garderobeskabe med tekstilfinish, aluminiumsvinduer med termisk adskillelse og motoriserede skodder i stuen garanterer holdbarhed og stil. Køkkener og badeværelser har inventar af høj kvalitet, med bruseskærme og indbyggede spejle inkluderet. Forinstalleret kanaliseret aircondition for komfort året rundt.
Eksklusive faciliteter for beboerne
Denne moderne bygning er designet med henblik på bekvemmelighed og afslapning. Beboerne kan nyde:
Solarium på taget med fælles pool
Parkeringsplads til cykler og e-scootere i stueetagen
Elevator med adgang til alle etager, inklusive taget
Dynamisk livsstil på Costa Blanca
Torrevieja er en livlig kystby, der er kendt for sit solrige klima med over 300 solskinsdage om året, kulturelle begivenheder og middelhavsstil. Dens strande, marina, promenader og vandsportsfaciliteter gør den til et ideelt sted at bo permanent eller nyde en ferie. Alle vigtige tjenester såsom supermarkeder, caféer, skoler og sundhedscentre ligger inden for gåafstand.
Fremragende beliggenhed og forbindelser
Denne privilegerede beliggenhed sikrer hurtig adgang til vigtige destinationer:
Promenade: 600 m
Playa del Acequión: 1 km
Torrevieja Marina: 600 m
Zenia Boulevard Shopping Center: 8 km
Golfbaner: 7–10 km
Alicante Internationale Lufthavn: 45 km
Dit middelhavshjem venter
Uanset om du er på udkig efter et feriehus, en smart investering eller en permanent bolig, tilbyder disse moderne nybyggede lejligheder i Torrevieja en enestående mulighed i et af de mest eftertragtede områder på Costa Blanca.
Kontakt os i dag for at arrangere en fremvisning og sikre dig dit nye hjem i dette eksklusive bycenterprojekt.