Nybyggede rækkehuse ved La Serena Golf i Los Alcázares
Førsteklasses beliggenhed ved golfbanen og havet
Oplev et eksklusivt boligkompleks med 31 nybyggede rækkehuse beliggende ved La Serena Golf i Los Alcázares, kun 600 m fra Mar Menor. Beliggende i hjertet af Costa Cálida kombinerer denne privilegerede beliggenhed golf, strand og middelhavslivsstil. Med alle faciliteter i nærheden og fremragende vejadgang er det det ideelle sted til både ferie og helårsbeboelse.
Moderne huse med privat pool og solterrasse på taget
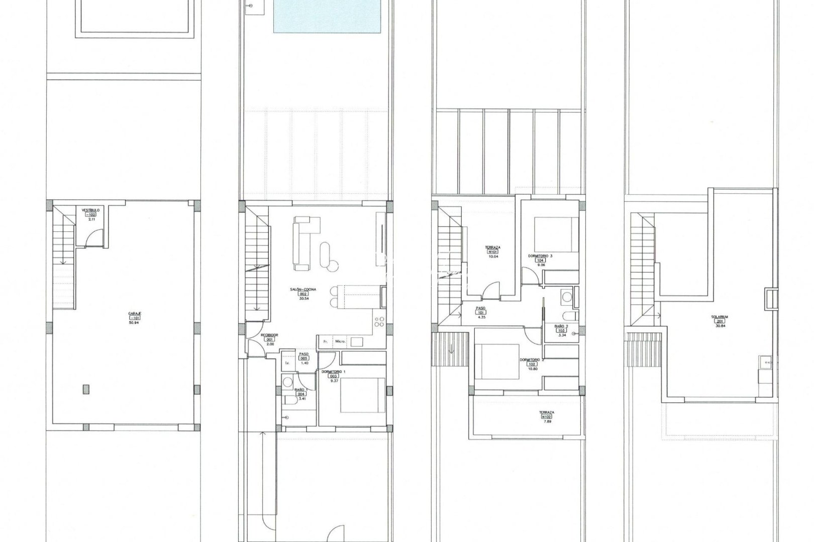
Hvert hus har et stilfuldt, moderne design og lyse indvendige rum. Husene er indrettet på tre niveauer plus solterrasse på taget, hvilket giver maksimal komfort og privatliv:
Kælder med privat garage til 2 biler og adgang til en gårdhave
Stueetage med åbent opholdsstue og køkken, der fører ud til en have og privat pool, 1 soveværelse og 1 badeværelse
Første sal med 2 soveværelser, 1 badeværelse og 2 terrasser
Tagterrasse med sommerkøkken, ideel til afslapning og nydelse af panoramaudsigten
Øst- og vestorientering sikrer fremragende naturligt lys og udendørs ophold hele dagen.
Høj kvalitet og komfort
Disse huse er bygget efter de højeste standarder og tilbyder førsteklasses faciliteter, herunder:
Privat swimmingpool
Kældergarage til 2 biler med motoriseret port
Aerotermisk varmtvandssystem
Fuldt installeret kanaliseret aircondition
Møbleret og udstyret køkken
Fuldt udstyrede badeværelser med møbler, spejle og brusevægge
Sikkerhedsdør
Bo mellem havet og golfbanen
Dette eksklusive boligområde ligger midt i det frodige middelhavslandskab og tilbyder et fredeligt liv ved siden af Serena Golfbanen, en berømt 18-hullers bane omgivet af natur og rolige søer. Det varme, lave vand i Mar Menor er perfekt til svømning og vandsport som sejlads, paddle surf og kajak året rundt.
Vigtige afstande:
Strand (Mar Menor): 600 m
La Serena Golf: ved siden af komplekset
Los Alcázares centrum: 2 km
Cartagena: 22 km
Murcia by: 40 km
Murcia lufthavn: 30 km
Alicante lufthavn: 90 km
Sikr dig din middelhavsstil
Uanset om du er på udkig efter en permanent bolig, et feriehus eller en rentabel investering, tilbyder disse huse luksus, bekvemmelighed og en overlegen kyststil.
Kontakt os i dag for at aftale en fremvisning og sikre dig dit nye hjem i Los Alcázares.