Nybyggede lejligheder i Los Balcones, Torrevieja
Moderne boliger i et førsteklasses boligområde
Oplev dette attraktive nybyggede boligkompleks beliggende i Los Balcones, et af de mest populære og etablerede kvarterer i udkanten af Torrevieja. Beliggende i et fredeligt miljø med fremragende adgang til alle vigtige faciliteter, ligger dette byggeri kun 4 km fra sandstrandene på Costa Blanca. Los Balcones er kendt for sin afslappede atmosfære, brede gader, grønne områder og nærhed til hospitaler, supermarkeder, restauranter og indkøbscentre, hvilket gør det ideelt til helårsbeboelse eller feriebolig.
Moderne lejligheder med private udendørsarealer
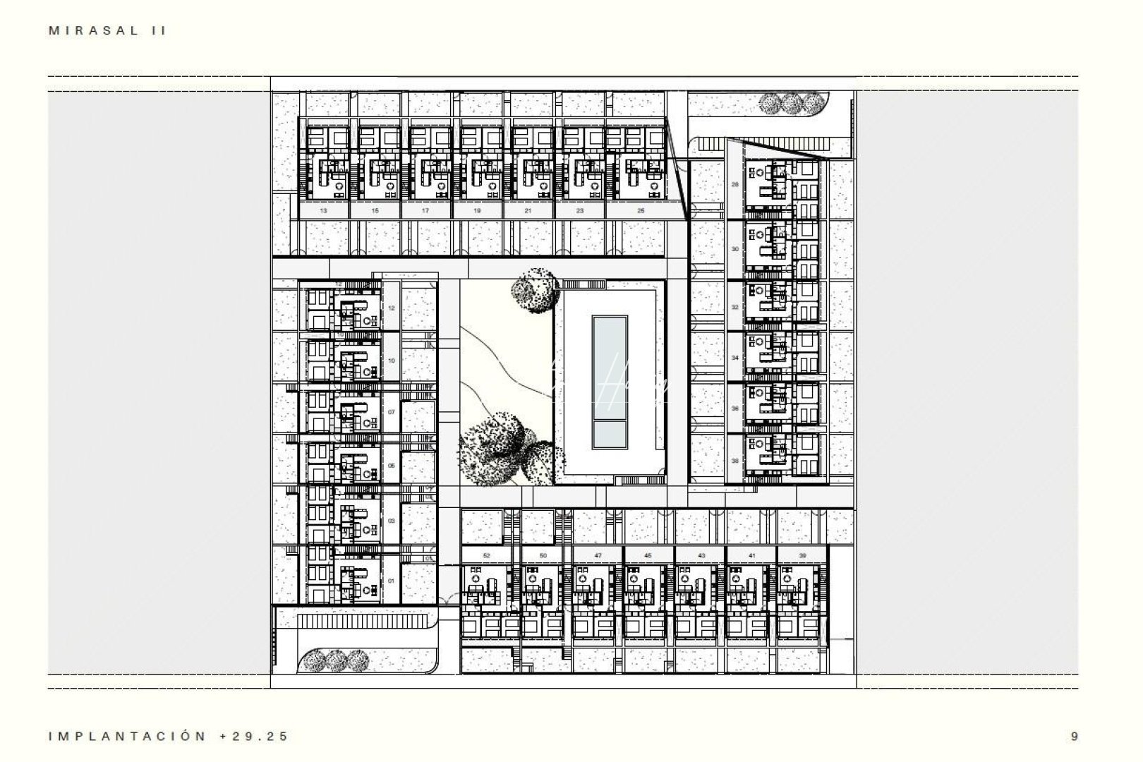
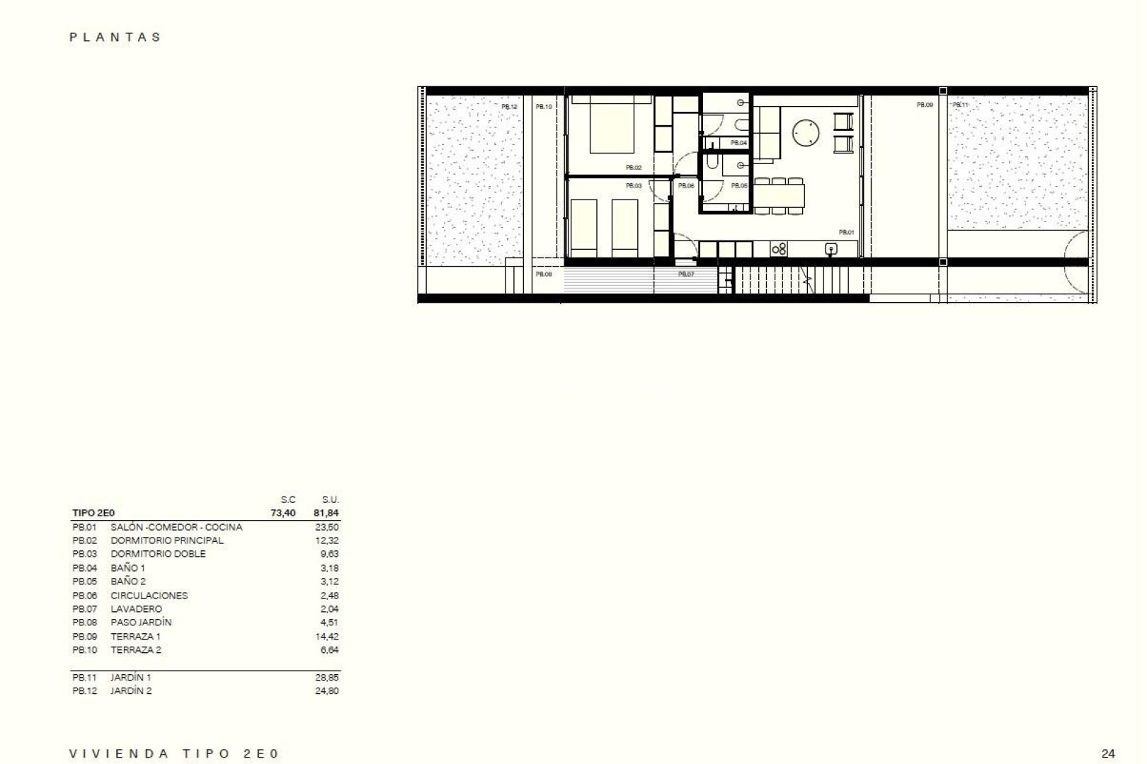
Komplekset består af 52 moderne lejligheder bygget på et samlet areal på 6700 m2. Hver ejendom har en privat parkeringsplads og et opbevaringsrum i kælderen. Boligerne har 2 eller 3 soveværelser og 2 badeværelser, hvoraf det ene er en suite.
Købere kan vælge mellem lejligheder i stueetagen med privat have eller boliger på øverste etage med en rummelig terrasse og privat solarium. Disse indretninger er designet til at maksimere det naturlige lys og give komfortable indendørs og udendørs opholdsrum, hvor man kan nyde det middelhavsklima året rundt.
Fællesarealer designet til afslapning
Projektet er opdelt i fire blokke, der omgiver et stort centralt fællesareal. Dette grønne hjerte i bebyggelsen har en swimmingpool med et særligt børneområde og smukt anlagte haver. Disse fællesarealer er perfekte til afslapning, socialt samvær og familietid i et sikkert og venligt miljø.
Kvalitetsfunktioner og energieffektivt design
Hver lejlighed er bygget efter moderne standarder og inkluderer forinstallation af kanaliseret aircondition, et aerotermisk varmtvandssystem for forbedret energieffektivitet, udvendig belysning og udvendige vinduer med dobbeltglas. Køkkenerne er fuldt møblerede og tilbyder et funktionelt og stilfuldt rum til dagligdagen.
Disse funktioner sikrer et højt komfortniveau, lav vedligeholdelse og reduceret energiforbrug, hvilket gør boligerne både praktiske og bæredygtige.
Fremragende beliggenhed tæt på strande og golf
Los Balcones har en strategisk beliggenhed tæt på mange seværdigheder. Strandene i Torrevieja ligger ca. 4 km væk. Flere kendte golfbaner, såsom Villamartin Golf, Las Ramblas Golf og Campoamor Golf, ligger inden for 10 til 15 km. Universitetshospitalet i Torrevieja ligger mindre end 2 km væk, hvilket giver ekstra bekvemmelighed og tryghed.
Torrevieja bymidte ligger ca. 5 km væk og er forbundet med bus med Los Balcones, hvor du finder et bredt udvalg af butikker, restauranter, kulturelle steder og en livlig marina. Alicante Internationale Lufthavn ligger ca. 42 km væk og tilbyder nemme internationale forbindelser. Havnen i Torrevieja ligger ca. 6 km væk.
Ideel til beboelse eller investering
Med sit moderne design, fremragende fællesarealer og førsteklasses beliggenhed tæt på strande, golfbaner og servicefaciliteter er dette nye boligkompleks i Los Balcones Torrevieja perfekt som permanent bopæl, feriebolig eller investeringsmulighed.
Kontakt os i dag for mere information eller for at aftale en fremvisning af disse nybyggede lejligheder i Los Balcones, Torrevieja.