Moderne nybyggede lejligheder i centrum af San Miguel de Salinas
Moderne bolig i et sundt middelhavsmiljø
Dette nye boligkompleks ligger i den charmerende by San Miguel de Salinas, kun 10 km fra Middelhavet, og tilbyder den perfekte balance mellem moderne komfort og naturlige omgivelser. Området er kendt for sine nærliggende saltsøer og sit enestående mikroklima, der betragtes som et af de sundeste i Europa. Denne fredelige, men livlige by giver beboerne mulighed for at nyde den autentiske middelhavsstil, samtidig med at de har gåafstand til butikker, restauranter, supermarkeder og alle nødvendige faciliteter.
San Miguel de Salinas ligger lidt inde i landet på Costa Blanca Syd og tilbyder fri udsigt, frisk luft og nem adgang til strande, golfbaner og shoppingområder.
Stilfulde lejligheder designet med fokus på komfort og effektivitet
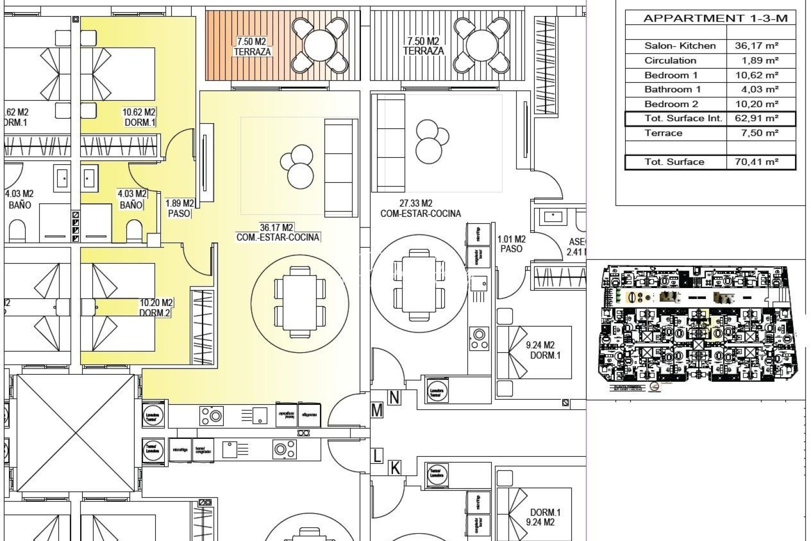
Projektet består af to moderne bygninger adskilt af en anlagt fælles have. Der er i alt 56 moderne lejligheder med 1, 2 eller 3 soveværelser, hver med egen terrasse. Alle boliger er designet med komfort, æstetik og energieffektivitet for øje, ved hjælp af materialer af høj kvalitet og moderne isoleringssystemer.
Hver lejlighed indeholder:
Pansret indgangsdør
Badeværelser med håndvaske
Forinstallation af kanaliseret aircondition
Energicertifikat klasse A
Boligernes indretning og orientering sikrer naturligt lys hele dagen, hvilket skaber lyse og indbydende interiører, der er ideelle til både permanent bolig og feriebolig.
Enestående fællesarealer til afslapning og socialt liv
Fællesarealet i stueetagen er designet som det sociale centrum i bebyggelsen, omgivet af anlagte haver, siddeområder, cykelparkering og en legeplads. Det er et ideelt mødested for beboere i alle aldre.
På taget venter et imponerende 350 m2 stort fritidsområde. Dette område omfatter en 70 m2 stor swimmingpool med et separat børnebassin, pergolaer, liggestole og skyggefulde områder, hvor beboerne kan slappe af og nyde panoramaudsigten. Taget er let tilgængeligt med en af de tre elevatorer og omfatter sanitære faciliteter for ekstra komfort.
Fremragende beliggenhed tæt på vigtige seværdigheder
Middelhavsstrande 10 km
Zenia Boulevard Shopping Center 9 km
Villamartin Golf 6 km
Las Colinas Golf 8 km
Torrevieja Marina 12 km
Alicante Lufthavn 60 km
Murcia Corvera Lufthavn 55 km
En smart investering i Costa Blanca Syd
Dette boligkompleks kombinerer moderne arkitektur, kvalitetsfinish og en førsteklasses central beliggenhed, hvilket gør det til et fremragende valg til bolig, ferie eller investering i udlejning.
Kontakt os i dag for mere information eller for at arrangere et besøg i disse moderne lejligheder i San Miguel de Salinas.