Nøglefærdig nybygget villa med havudsigt i La Alberca Polop
Luksuriøs moderne villa i naturlige bjergomgivelser
Denne nøglefærdige moderne villa ligger i La Alberca, et roligt boligområde i Polop, omgivet af skov og bjerge. Ejendommen ligger i en forhøjet beliggenhed og har panoramaudsigt over Middelhavet, bjergene og det historiske centrum af Polop. Villaen tilbyder privatliv, ro og gode forbindelser til kysten og nærliggende byer.
Polop er en charmerende landsby i Marina Baixa-regionen på Costa Blanca, kendt for sin traditionelle karakter og naturlige omgivelser. Ejendommen ligger tæt på alle faciliteter i La Nucia, herunder butikker, restauranter, sportscentre og skoler, mens strandene og de livlige kystbyer kun ligger en kort køretur væk.
Rummelig indretning på stueetagen, kælderen og solterrassen
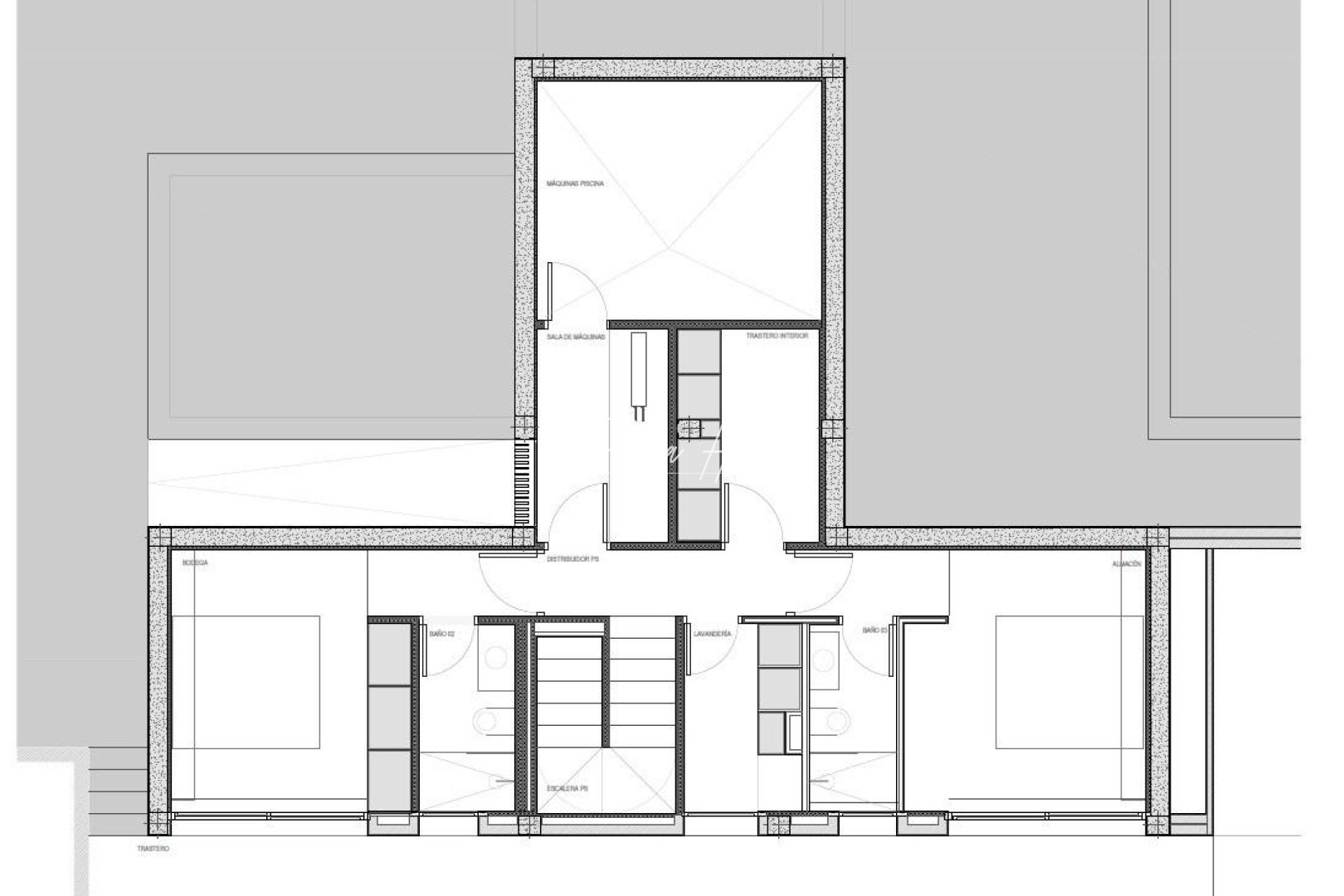
Villaen er fordelt over en stueetage, kælder og solarium på taget, hvilket giver generøs boligareal og fleksibilitet.
På stueetagen fører en indbydende entré med indbygget garderobe til to soveværelser med eget badeværelse, herunder en master-suite med hæve-sænke-vinduer, der åbner ud til en fransk altan og terrasse. Den åbne stue og spisestue forbinder problemfrit til en overdækket pergola-terrasse og en privat saltvandsswimmingpool.
Kælderen har to ekstra soveværelser med eget badeværelse og store vinduer, et fleksibelt legerum eller biografrum med vand- og strømforbindelser til et barområde, et fuldt udstyret vaskerum med Haier-apparater og to tekniske opbevaringsrum.
Solariet på taget tilbyder et stort udendørsareal med panoramaudsigt over havet og er forberedt til fremtidig installation af solceller. Et udekøkken, flere opbevaringsskabe og en middelhavsinspireret have med automatisk vanding fuldender det udvendige.
Høj kvalitet og energieffektivitet
Denne villa udmærker sig ved sin eksklusive finish og avancerede installationer, herunder:
Central køkkenø med integrerede BOSCH-apparater
Bordplader i natursten indendørs og udendørs
Forinstallation af gulvvarme
Mitsubishi aerotermisk klimaanlæg
Energieffektivitetsklasse A
Forinstallation til smart home-system
Saltvandsswimmingpool med valgfri opvarmning
Privat parkering til to biler
Store vinduer med solbeskyttelsesglas maksimerer det naturlige lys og sikrer samtidig komfort og sikkerhed.
Fremragende beliggenhed og afstande
Polop centrum 2 km
La Nucia 4 km
Benidorm 12 km
Altea 10 km
Strande 10 km
Villaitana Golf 14 km
Alicante lufthavn 65 km
Sikr dig dit drømmehus i Polop
Denne enestående nøglefærdige villa kombinerer privatliv, design og panoramaudsigt i et af de mest attraktive områder i det indre af Costa Blanca. Kontakt os i dag for at arrangere en privat fremvisning og gør denne luksusvilla i La Alberca Polop til dit nye hjem.