Moderne, nybyggede rækkehuse og dobbelthuse med private swimmingpools i El Alba Resort-Torre Pacheco
Moderne boliger i et voksende ferieområde ved Middelhavet
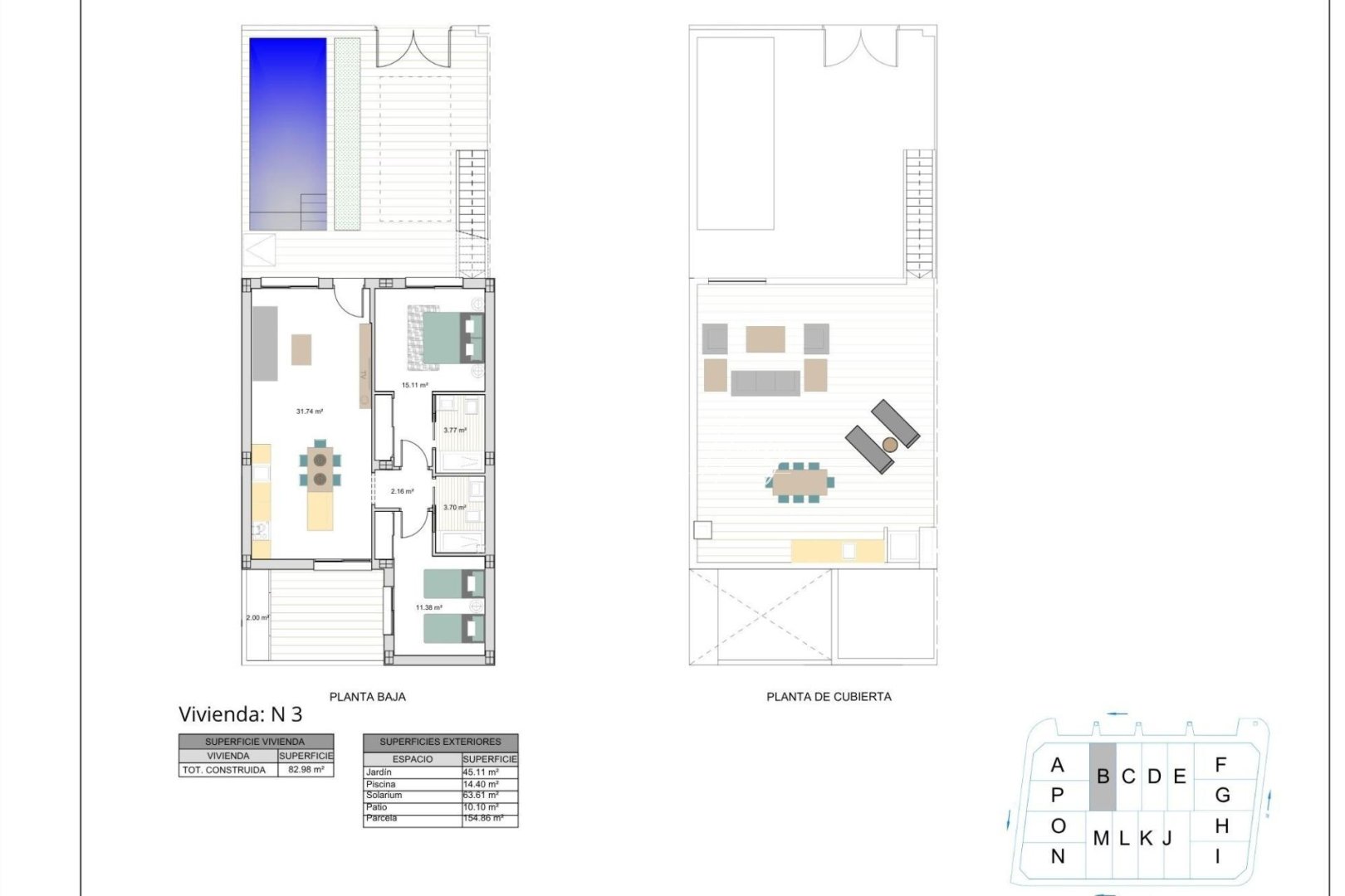
Dette nye boligprojekt består af 16 eksklusive rækkehuse og dobbelthuse, beliggende i El Alba Mediterranean Resort i Torre Pacheco. Disse moderne boliger er designet som etplanshuse og tilbyder en perfekt blanding af komfort, funktionalitet og middelhavsinspireret udendørsliv.
El Alba Resort er et opblomstrende boligområde omgivet af åbent landskab og golfbaner, inden for kort afstand til byen Roldán, hvor du finder supermarkeder, restauranter, banker og dagligdags faciliteter. Komplekset har allerede en klub med swimmingpool og restaurant, og et butiksområde er i øjeblikket under udvikling, hvilket tilføjer yderligere bekvemmelighed og værdi til beliggenheden.
Enkeltetages bolig med privat have og solterrasse
Hver bolig har 2 soveværelser og 2 badeværelser, hvoraf det ene er en-suite, samt et åbent køkken i forbindelse med en lys stue. Indretningen er omhyggeligt designet for at maksimere det naturlige lys og skabe en sømløs forbindelse mellem indendørs og udendørs rum.
Alle boliger inkluderer:
Indbygget køkken med hvidevarer
Badeværelser med vaskemøbler, spejle, belysning og brusevægge
Indbyggede garderobeskabe med skuffer i soveværelserne
Forberedelse til kanalisationsklimaanlæg
LED-belysning inde og ude
Tre solcellepaneler med en kapacitet på 1,5 kW pr. bolig
Udearealerne er designet til at kunne nydes året rundt og omfatter en privat have med swimmingpool, en terrasse og et stort privat solterrasseområde med et sommerkøkken, der er ideelt til udendørs spisning og afslapning i solen.
Kvalitetsdetaljer designet med henblik på komfort og effektivitet
Disse boliger er bygget med stilfuldt og funktionelt interiør, med fokus på energieffektivitet og moderne livsstil. Grunden har en privat parkeringsplads, hvilket sikrer bekvemmelighed og sikkerhed.
Kombinationen af solcellepaneler, højkvalitetsisolering og smart design giver en energieffektiv bolig, der er ideel til fast bopæl, feriebolig eller som udlejningsinvestering.
Fremragende beliggenhed tæt på golfbaner, strande og lufthavne
Roldán bymidte 2 km væk
Mar Menor-strande 15 km væk
Middelhavsstrande 20 km væk
La Torre Golf Resort 5 km væk
Terrazas de la Torre Golf 6 km væk
Murcia Corvera Lufthavn 18 km væk
Cartagena 30 km væk
Denne strategiske beliggenhed giver nem adgang til golfbaner, strande, faciliteter og transportforbindelser, samtidig med at man nyder et fredeligt boligmiljø.
En smart investering på Costa Cálida
Disse rækkehuse og dobbelthuse på El Alba Mediterranean Resort tilbyder en fremragende mulighed for at købe en moderne ejendom med privat pool i det hurtigt voksende område Torre Pacheco.
Kontakt os i dag for yderligere information eller for at aftale en fremvisning af disse eksklusive nybyggede boliger.