Polop · URBANIZACIONES Einfamilienhaus · Neubau-Projekte

€470,000
Ref: 00-84630
Zurück

Polop · URBANIZACIONES Einfamilienhaus · Neubau-Projekte · Ref: 00-84630

Zurück
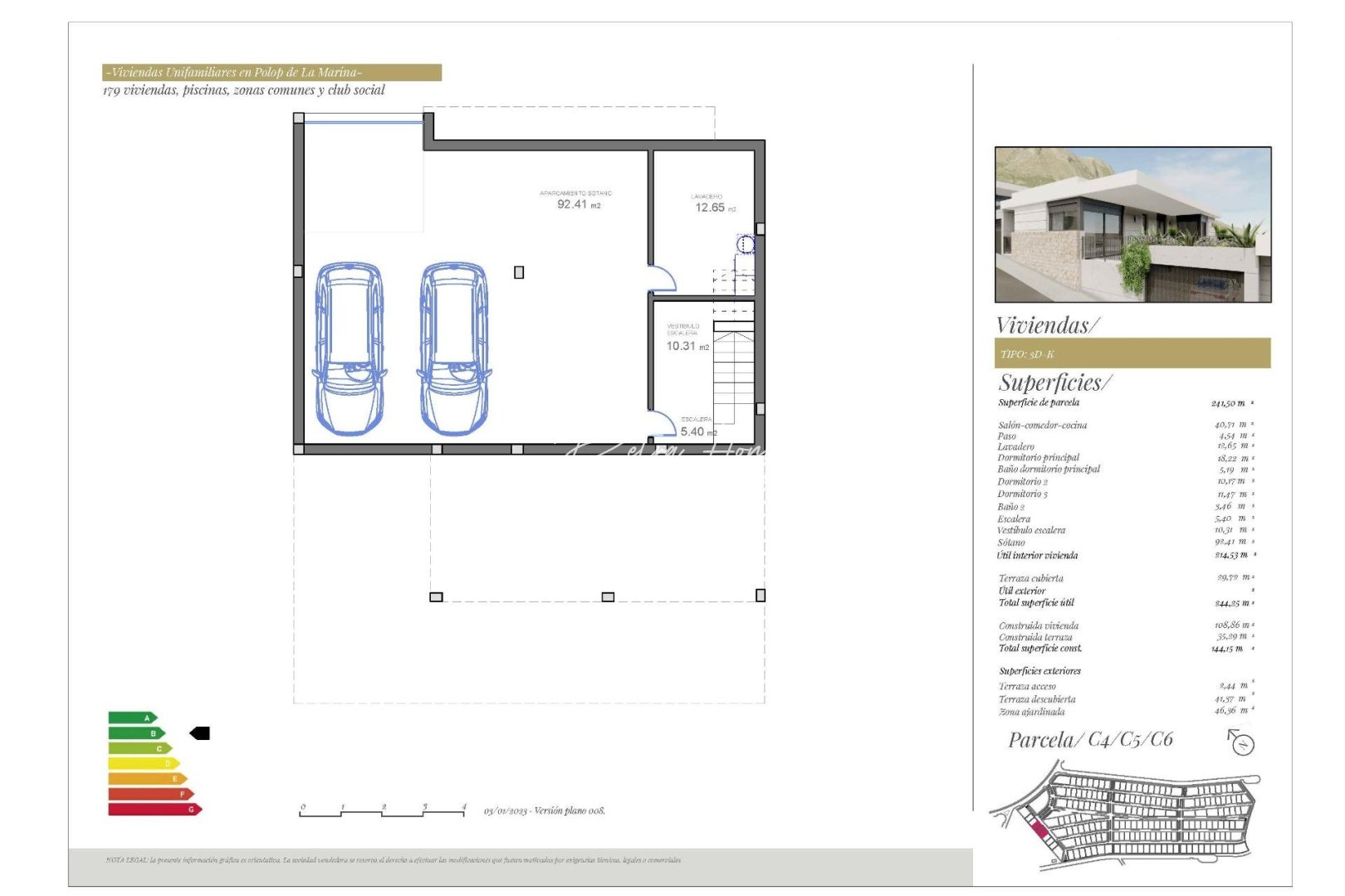
  • 200m2 m2 Überbaute Fläche
  • 241m2 m2 Grundstück
  • 3 Schlafzimmer
  • 2 Badezimmer
  • Ja Schwimmbad
Schwimmbad: Ja
Views: Sea
Solarium: Yes
Air Conditioning: Pre-Installed
Terrace: 113 Msq.
Key ready
Garden
gemeinschaftliches Schwimmbad
Private pool
Near schools
Gated
Number of Parking Spaces: 1
Near Commercial Center
Near Trees
Under-Build / Basement
Location: Rural, Mountain, Urbanisation
Parking - Space
Beach: 8500 Meters
Useable Build Space: 108 Msq.
Double Bedrooms: 3
Energiebewertung: X

Sind Sie interessiert? Make an enquiry

Responsable del tratamiento: Petra Hönig, Finalidad del tratamiento: Gestión y control de los servicios ofrecidos a través de la página Web de Servicios inmobiliarios, Envío de información a traves de newsletter y otros, Legitimación: Por consentimiento, Destinatarios: No se cederan los datos, salvo para elaborar contabilidad, Derechos de las personas interesadas: Acceder, rectificar y suprimir los datos, solicitar la portabilidad de los mismos, oponerse altratamiento y solicitar la limitación de éste, Procedencia de los datos: El Propio interesado, Información Adicional: Puede consultarse la información adicional y detallada sobre protección de datos Aquí.
Kontakt per WhatsApp
Petra Hönig

Abonnieren Sie unseren Newsletter

Möchten Sie unsere neuesten Immobilienangebote und Sonderangebote erhalten?

facebook youtube twitter
WhatsApp