Torrevieja · Torreblanca Einfamilienhaus · Neubau-Projekte

€750,000
Ref: 00-98679
Zurück

Torrevieja · Torreblanca Einfamilienhaus · Neubau-Projekte · Ref: 00-98679

Zurück
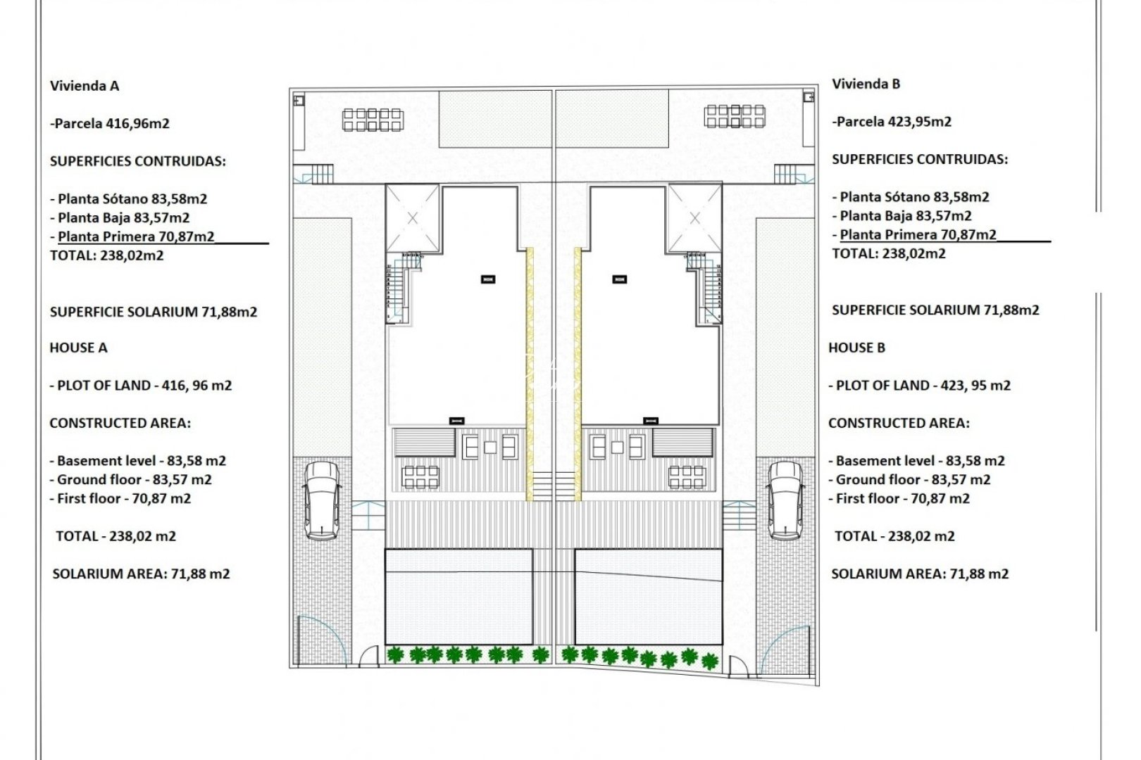
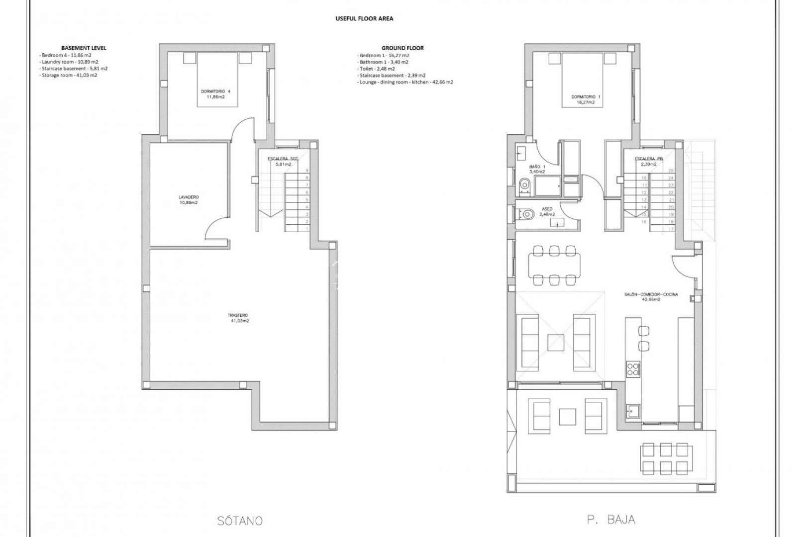
  • 238m2 m2 Überbaute Fläche
  • 420m2 m2 Grundstück
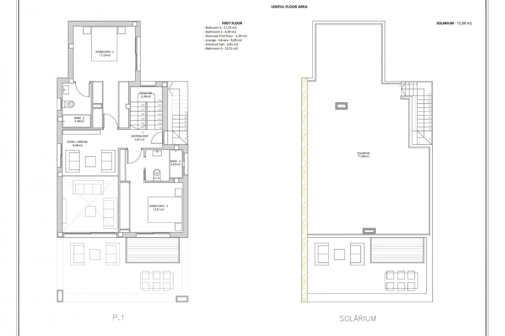
  • 4 Schlafzimmer
  • 4 Badezimmer
  • Ja Schwimmbad
Schwimmbad: Ja
Key ready
Garden
Private pool
Near schools
Gated
Number of Parking Spaces: 1
Near Bus Route
Near Commercial Center
Location: Coastal
Near Trees
Under-Build / Basement
Beach: 1200 Meters
Parking - Space
Useable Build Space: 180 Msq.
Double Bedrooms: 4
Solarium: Yes
Air Conditioning: Pre-Installed
Terrace: 102 Msq.
Storage / Trastero
Energiebewertung: B

Sind Sie interessiert? Make an enquiry

Responsable del tratamiento: Petra Hönig, Finalidad del tratamiento: Gestión y control de los servicios ofrecidos a través de la página Web de Servicios inmobiliarios, Envío de información a traves de newsletter y otros, Legitimación: Por consentimiento, Destinatarios: No se cederan los datos, salvo para elaborar contabilidad, Derechos de las personas interesadas: Acceder, rectificar y suprimir los datos, solicitar la portabilidad de los mismos, oponerse altratamiento y solicitar la limitación de éste, Procedencia de los datos: El Propio interesado, Información Adicional: Puede consultarse la información adicional y detallada sobre protección de datos Aquí.
Kontakt per WhatsApp
Petra Hönig

Abonnieren Sie unseren Newsletter

Möchten Sie unsere neuesten Immobilienangebote und Sonderangebote erhalten?

facebook youtube twitter
WhatsApp