Torrevieja · Los Balcones Bungalow · Obra Nueva

€340,000
Ref: 00-46181
Volver

Torrevieja · Los Balcones Bungalow · Obra Nueva · Ref: 00-46181

Volver
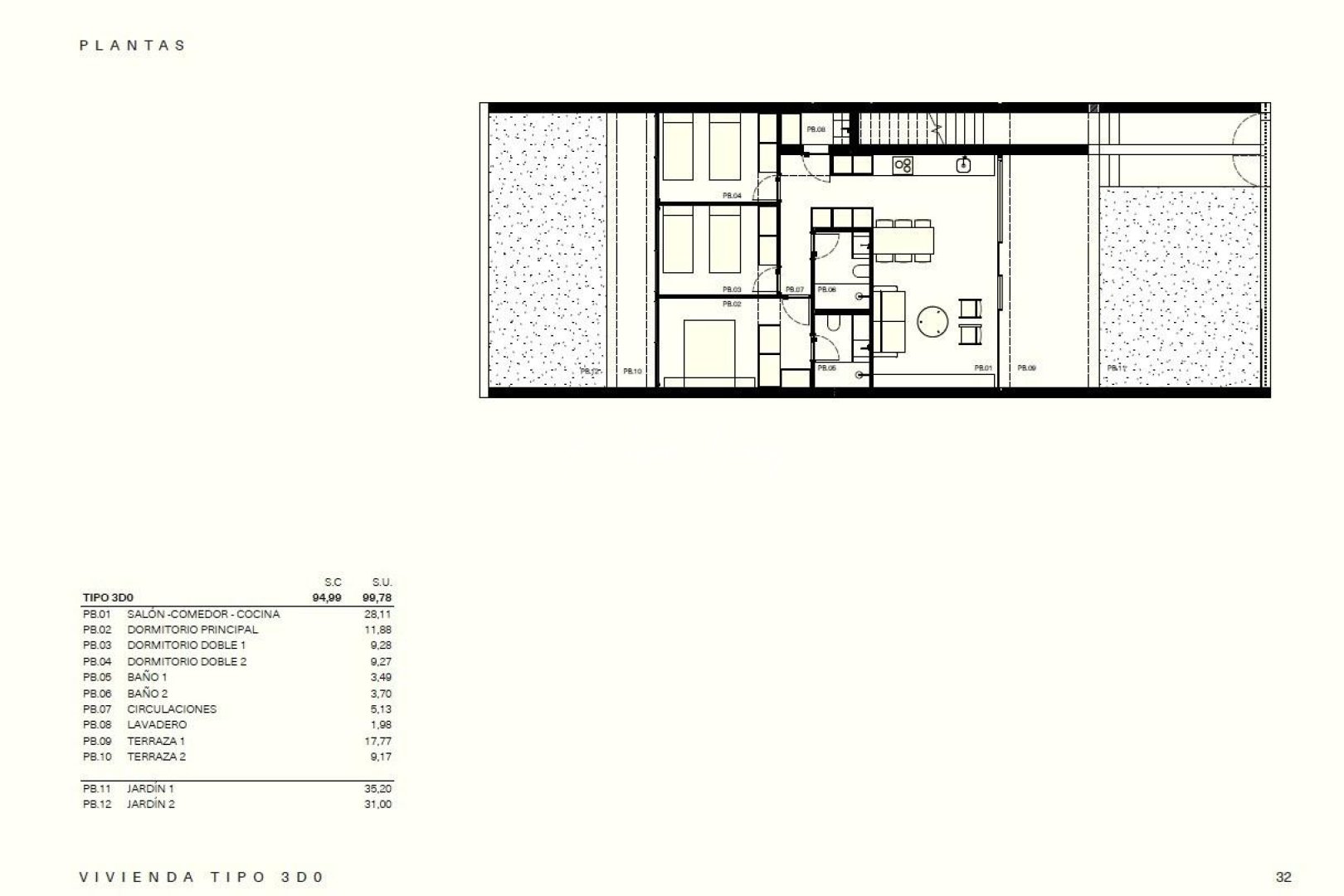
  • 99m2 m2 Construidos
  • 76m2 m2 Parcela
  • 3 Habitaciones
  • 2 Baños
  • Piscina
Piscina:
Garden
piscina comunitaria
Near schools
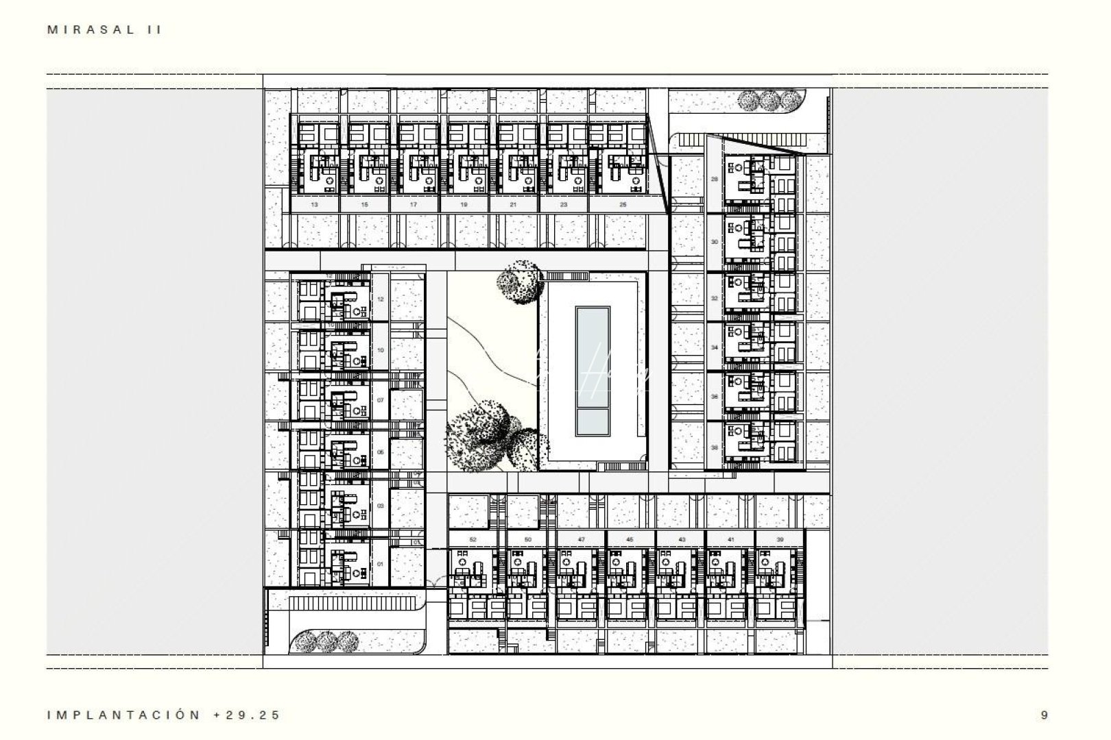
Gated
Number of Parking Spaces: 1
Near Golf / Golf Resort Property
Near Commercial Center
Location: Coastal, Urbanisation
Beach: 3500 Meters
Useable Build Space: 94 Msq.
Parking - Space
Double Bedrooms: 3
Air Conditioning: Pre-Installed
Terrace: 27 Msq.
Storage / Trastero
Calificación energética: B

¿Te interesa? Realizar una consulta

Responsable del tratamiento: Petra Hönig, Finalidad del tratamiento: Gestión y control de los servicios ofrecidos a través de la página Web de Servicios inmobiliarios, Envío de información a traves de newsletter y otros, Legitimación: Por consentimiento, Destinatarios: No se cederan los datos, salvo para elaborar contabilidad, Derechos de las personas interesadas: Acceder, rectificar y suprimir los datos, solicitar la portabilidad de los mismos, oponerse altratamiento y solicitar la limitación de éste, Procedencia de los datos: El Propio interesado, Información Adicional: Puede consultarse la información adicional y detallada sobre protección de datos Aquí.
Contactar por WhatsApp
Petra Hönig

Suscríbete a nuestro boletín

¿Quieres recibir nuestras últimas propiedades en venta y ofertas especiales?

facebook youtube twitter
WhatsApp