Torrevieja · Los Balcones Bungalow · Nybygg

€340,000
Ref: 00-46181
Komme tilbake

Torrevieja · Los Balcones Bungalow · Nybygg · Ref: 00-46181

Komme tilbake
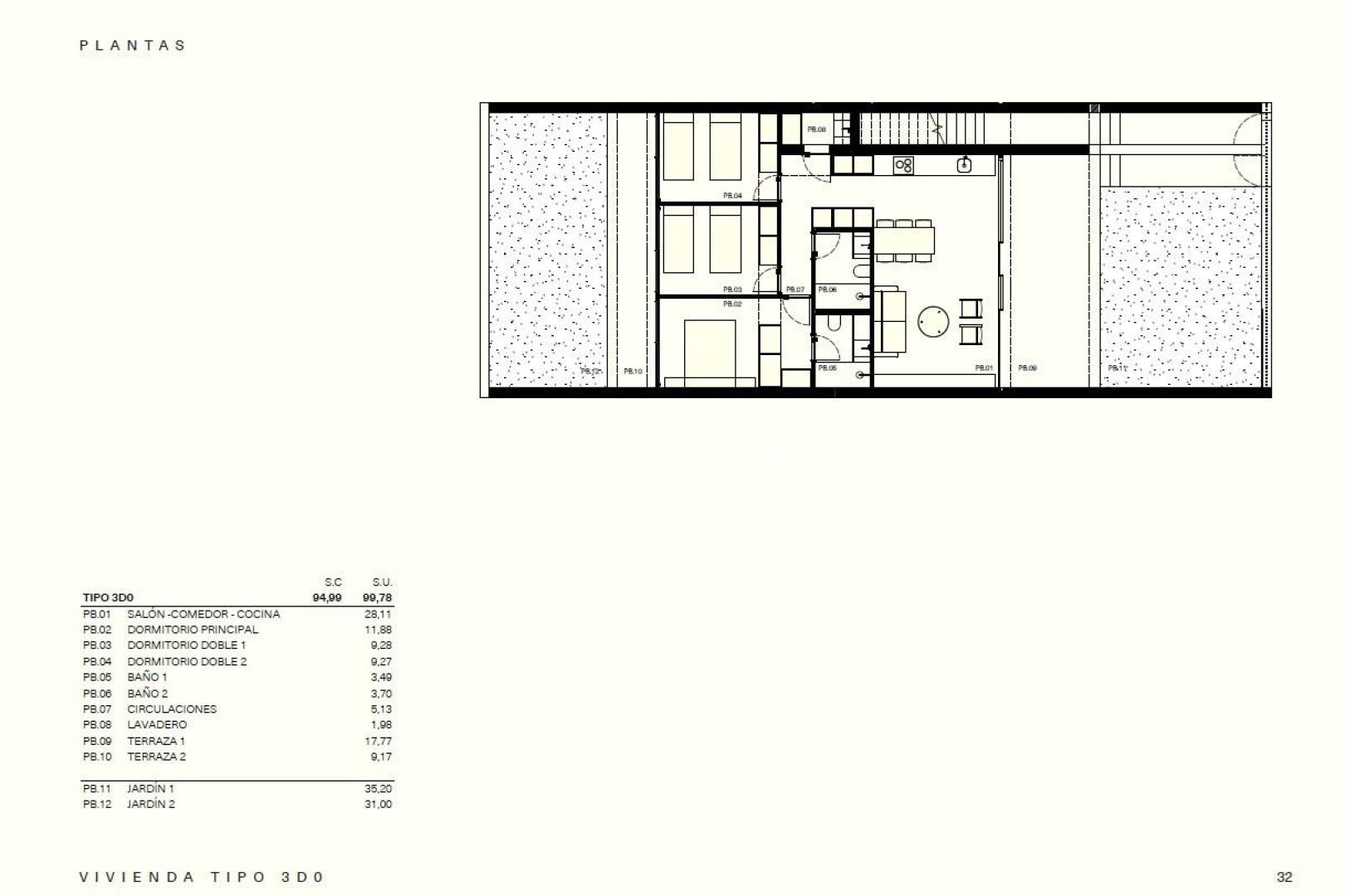
  • 99m2 m2 Inne
  • 76m2 m2 Plott
  • 3 Soverom
  • 2 Baderom
  • Ja Basseng
Basseng: Ja
Garden
Communal pool
Near schools
Gated
Number of Parking Spaces: 1
Near Golf / Golf Resort Property
Near Commercial Center
Location: Coastal, Urbanisation
Beach: 3500 Meters
Useable Build Space: 94 Msq.
Parking - Space
Double Bedrooms: 3
Air Conditioning: Pre-Installed
Terrace: 27 Msq.
Storage / Trastero
Energi~~POS=TRUNC: B

Er du interessert? Foreta en forespørsel

Responsable del tratamiento: Petra Hönig, Finalidad del tratamiento: Gestión y control de los servicios ofrecidos a través de la página Web de Servicios inmobiliarios, Envío de información a traves de newsletter y otros, Legitimación: Por consentimiento, Destinatarios: No se cederan los datos, salvo para elaborar contabilidad, Derechos de las personas interesadas: Acceder, rectificar y suprimir los datos, solicitar la portabilidad de los mismos, oponerse altratamiento y solicitar la limitación de éste, Procedencia de los datos: El Propio interesado, Información Adicional: Puede consultarse la información adicional y detallada sobre protección de datos Aquí.
Kontakt via WhatsApp
Petra Hönig

Meld deg på vårt nyhetsbrev

Vil du motta våre nyeste eiendommer til salgs og spesialtilbud?

facebook youtube twitter
WhatsApp