Nybyggede bungalower i Dolores
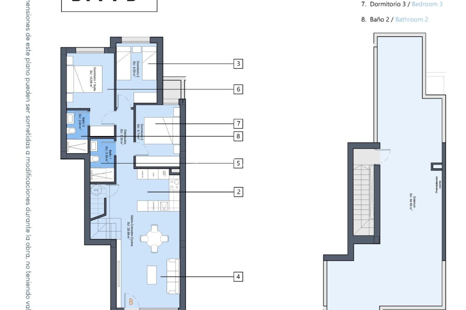
Boliger med eiendommer i første etasje med hage eller toppetasje med privat solarium, med 3 soverom og 2 bad, ligger i Dolores (Alicante), et privilegert område på Costa Blanca, som ligger ved siden av naturparken El Hondo, omgitt av natur og utstyrt med alle tjenester.
Det er 25 minutter fra Alicante flyplass, nær de vakre strendene i Guardamar del Segura og bare noen få minutter fra de viktigste golfbanene i området. Den utmerkede beliggenheten gjør prosjektet til et perfekt alternativ for de som ønsker fred og ro.
Hver bolig har sin egen parkeringsplass, og de fleste av leilighetene har bod.
Og med et vakkert felles svømmebasseng med toalett for å slappe av etter en dag med jobb eller sightseeing.
Høy kvalitet og moderne fasiliteter
Disse boligene er bygget med materialer og finish av høy kvalitet. Det utvendige snekkerarbeidet er laget av aluminium med kuldebrobryter, og badene har baderomsmøbler med speil. Belysningen som er installert i hele eiendommen garanterer energieffektivitet og en moderne atmosfære. Innebygde garderober foret på innsiden. Disse funksjonene skaper et komfortabelt og stilig bomiljø for deg og din familie.
Førsteklasses beliggenhet nær daglige fasiliteter
Disse boligene ligger i utkanten av den sjarmerende byen Dolores, bare en kort spasertur fra viktige dagligdagse fasiliteter som butikker, restauranter og lokale tjenester. Dolores er en del av Vega Baja del Segura-regionen sør i Alicante-provinsen, som er kjent for sitt jordbrukslandskap og avslappede tempo.
Nærliggende severdigheter
La Marina-stranden: 10 km
Guardamar-stranden: 10 km
Alicante lufthavn: 30 km
Murcia-Corvera lufthavn: 60 km
Golfbaner: 10 km
Kjøpesentre: 12 km
Perfekt for å nyte livsstilen på Costa Blanca
Med middelhavsklimaet, vakre strender bare en kort kjøretur unna og flere golfbaner i nærheten, tilbyr denne urbanisasjonen den ideelle balansen mellom avslapning og fritid. Enten du er på utkikk etter et feriehus eller en permanent bolig, tilbyr disse nybygde boligene i Dolores en moderne livsstil i et rolig område med gode forbindelser.