Moderne nybyggede leiligheter i hjertet av Torrevieja, bare 600 m fra sjøen
Eksklusivt boutique-prosjekt i sentrum av Torrevieja
Oppdag et eksklusivt boligprosjekt med bare 7 moderne nybyggede leiligheter, ideelt beliggende i det livlige sentrum av Torrevieja, Alicante. Bare 600 m fra strandpromenaden kombinerer disse stilige boligene fordelene ved å bo ved kysten med bekvemmeligheten ved en urban livsstil, med enkel tilgang til butikker, restauranter og fritidstilbud.
Moderne design og smarte planløsninger
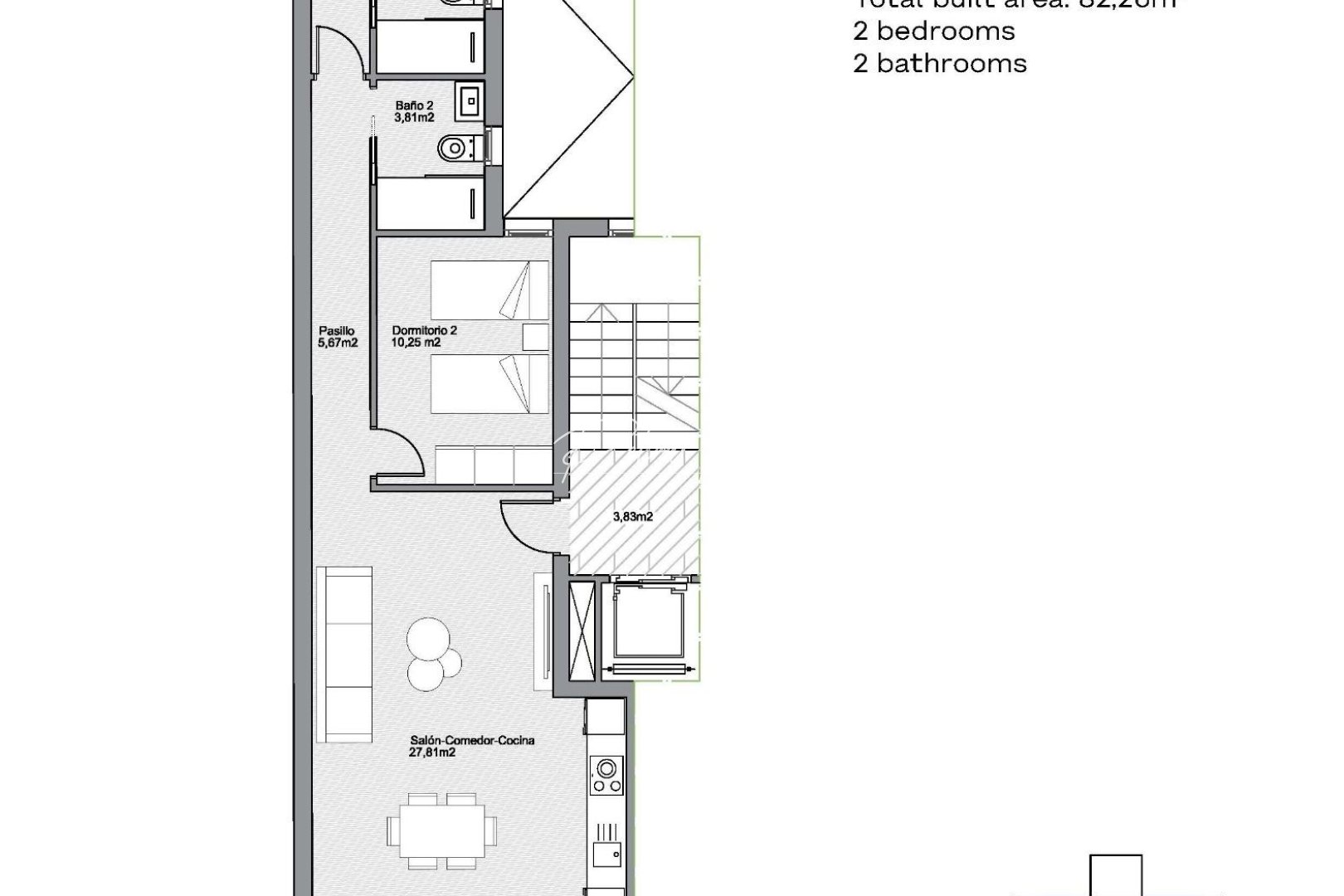
Velg mellom leiligheter med 1 eller 2 soverom, hver med 2 bad (ett en-suite). De åpne planløsningene er designet for å maksimere plass og naturlig lys, og sikrer både komfort og funksjonalitet. Premium-finish som sikkerhetsdører, innebygde garderober med tekstilfinish, aluminiumsvinduer med termisk brudd og motoriserte persienner i stuen garanterer holdbarhet og stil. Kjøkken og bad har innredning av høy kvalitet, med dusjvegger og innebygde speil inkludert. Forhåndsinstallert luftkondisjonering for komfort hele året.
Eksklusive fasiliteter for beboerne
Denne moderne bygningen er designet for bekvemmelighet og avslapning. Beboerne kan nyte:
Solarium på taket med felles svømmebasseng
Parkeringsplass for sykler og e-scootere i første etasje
Heis med tilgang til alle etasjer, inkludert taket
Dynamisk livsstil på Costa Blanca
Torrevieja er en livlig kystby kjent for sitt solrike klima med over 300 soldager i året, kulturelle arrangementer og middelhavsstil. Strendene, marinaen, promenadene og vannsportfasilitetene gjør det til et ideelt sted å bo permanent eller nyte en ferie. Alle viktige tjenester som supermarkeder, kafeer, skoler og helsesentre ligger innen gangavstand.
Utmerket beliggenhet og tilknytning
Denne privilegerte beliggenheten sikrer rask tilgang til viktige destinasjoner:
Promenade: 600 m
Playa del Acequión: 1 km
Torrevieja Marina: 600 m
Zenia Boulevard kjøpesenter: 8 km
Golfbaner: 7–10 km
Alicante internasjonale lufthavn: 45 km
Ditt middelhavshjem venter
Enten du er på utkikk etter et feriehus, en smart investering eller en permanent bolig, tilbyr disse moderne nybygde leilighetene i Torrevieja en enestående mulighet i et av de mest attraktive områdene på Costa Blanca.
Kontakt oss i dag for å avtale en visning og sikre deg ditt nye hjem i dette eksklusive sentrumsprosjektet.