NEWLY BUILT BUNGALOWS IN FUENTE ALAMO, MURCIA
Newly built residential complex of bungalows in Fuente Álamo, Murcia.
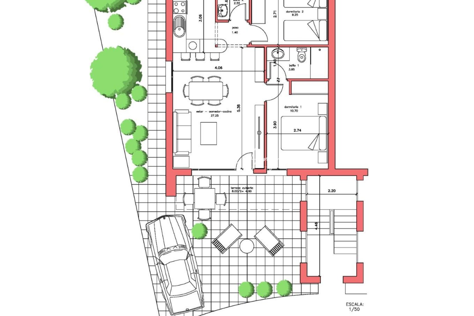
Ground floor bungalows with private gardens and first floor bungalows with private solariums.
This location offers an exceptional natural environment, far from the hustle and bustle of big cities and the tourist pressure of the coast. Furthermore, we are committed to working from a sustainable development perspective, minimising our environmental impact and maximising integration with the local community. Here, your dreams of a peaceful and sustainable lifestyle become a reality. Imagine waking up every morning in a stunning natural setting, surrounded by serene landscapes and the unique beauty of the Murcian countryside.
New construction projects prioritise energy efficiency, the use of environmentally friendly materials and harmonious integration with the rural environment. From property design to development planning, we strive to reduce our carbon footprint and promote responsible practices in all our operations.
Development prioritising energy efficiency and community integration to create high-quality homes in harmony with the natural environment.
Complete installation of ducted air conditioning, hot/cold.
Video intercom system.
Colour-lacquered security entrance door with lock and anti-vandal security fittings.
Cupboards with storage space, lined inside, lacquered in white.
Kitchen furniture with appliances included.
Hot water by aerothermal energy.
Electric blinds.
Pergolas in solariums.
Photovoltaic solar panel system with storage tank.
Possibility of modifications to the property, subject to approval by both parties.
Fuente Álamo de Murcia is a town and municipality in the Region of Murcia, in southern Spain. It is located 22 km north-west of Cartagena and 35 km south-west of Murcia.
The town is located in the Mar Menor basin, surrounded by the Algarrobo, Los Gómez, Los Victorias and Carrascoy mountain ranges. The water from these mountains flows down into the Rambla de Fuente Álamo and then into the Mar Menor.
Fuente Álamo is 30 minutes from Murcia - Corvera airport. Nearest shops 6 km away.