Orihuela Costa · PAU 26 Tаунхаус · новый

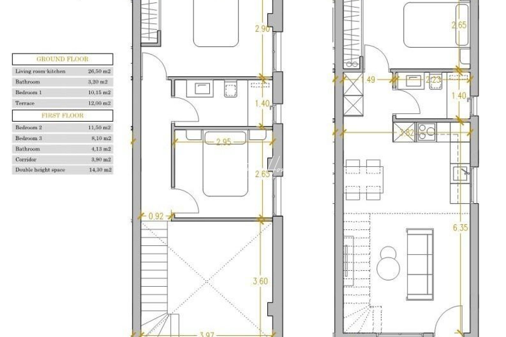
  • 93m2 m2 построен
  • 106m2 m2 участок
  • 3 спальни
  • 2 В ванных комнатах
  • да Бассейн
Бассейн: да
Garden
Communal pool
Near schools
Gated
Near Bus Route
Near Commercial Center
Location: Coastal, Urbanisation
Beach: 3500 Meters
Useable Build Space: 82 Msq.
Parking - Space
Double Bedrooms: 3
Air Conditioning: Pre-Installed
Terrace: 12 Msq.
Класс энергопотребления: B

Вам интересно? Делать запрос

Responsable del tratamiento: Petra Hönig, Finalidad del tratamiento: Gestión y control de los servicios ofrecidos a través de la página Web de Servicios inmobiliarios, Envío de información a traves de newsletter y otros, Legitimación: Por consentimiento, Destinatarios: No se cederan los datos, salvo para elaborar contabilidad, Derechos de las personas interesadas: Acceder, rectificar y suprimir los datos, solicitar la portabilidad de los mismos, oponerse altratamiento y solicitar la limitación de éste, Procedencia de los datos: El Propio interesado, Información Adicional: Puede consultarse la información adicional y detallada sobre protección de datos Aquí.
Связаться через WhatsApp
Petra Hönig

Подписаться на рассылку

Хотите получать последние объявления о продаже недвижимости и специальные предложения?

facebook youtube twitter
WhatsApp