Новые апартаменты в Бенихофаре Современная жизнь в престижном месте
Эксклюзивный новый проект на юге Коста-Бланки
Этот новый жилой комплекс состоит из 18 современных апартаментов, расположенных на въезде в Бенихофар, в нескольких минутах ходьбы от центра города. Расположенный в одном из самых быстроразвивающихся районов юга Коста-Бланки, проект сочетает в себе современную архитектуру, качественные материалы и стратегическое расположение, идеально подходящее как для постоянного проживания, так и для инвестиций.
Типы квартир для любого стиля жизни
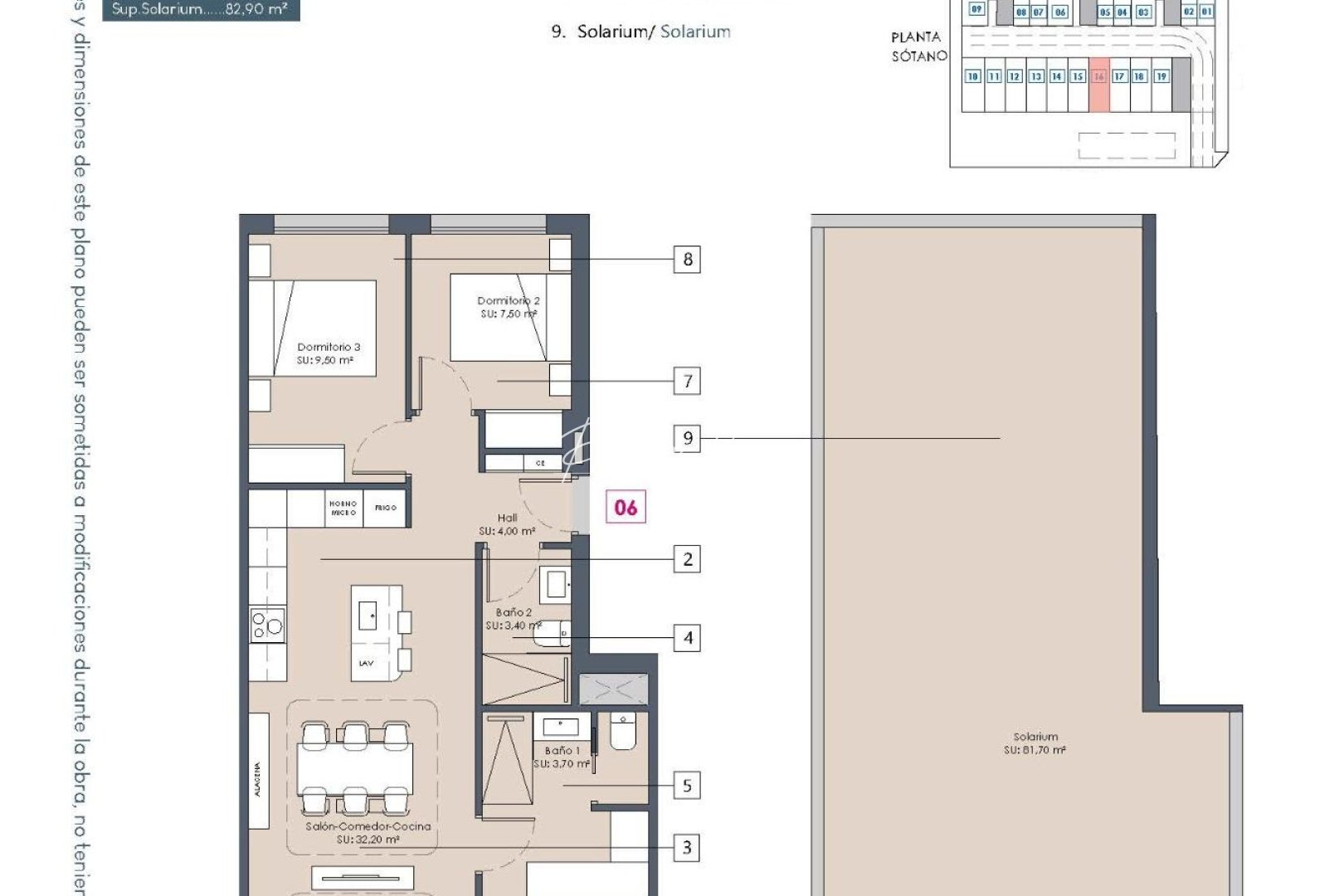
Комплекс предлагает просторные квартиры с тремя спальнями и двумя ванными комнатами, включая одну ванную комнату в спальне. Покупатели могут выбрать между квартирами на первом этаже с большими террасами и частными садами, квартирами на средних этажах с просторными террасами или пентхаусами с террасой и частным солярием. Солярий включает в себя предварительную установку для летней кухни, идеально подходящей для наслаждения средиземноморским климатом.
Современный дизайн и высокий уровень комфорта
Каждая квартира была тщательно спроектирована, чтобы обеспечить светлые и открытые жилые помещения с современной и функциональной планировкой. Квартиры имеют открытую планировку гостиной и столовой, полностью оборудованную кухню с верхними и нижними шкафами и высококачественную отделку во всех помещениях. Спальни просторные и удобные, а ванные комнаты оборудованы современными материалами и элегантными деталями.
Жилой комплекс включает в себя общий бассейн и ландшафтные сады, создавая расслабляющую атмосферу для жителей. Все дома оборудованы предварительной установкой для канального кондиционирования и отопления, наружной столяркой с терморазрывом и двойным остеклением, аэротермальной системой для горячей воды и усиленной входной дверью. Каждая квартира также включает в себя частное парковочное место и кладовую в подвале, с лифтом на все этажи.
Бенихофар — очаровательный городок с полным набором услуг
Бенихофар — это устоявшийся испанский городок, который предлагает идеальный баланс между традиционным шармом и современной жизнью. В центре города есть местные магазины, супермаркеты, аптеки, рестораны и гостеприимная атмосфера круглый год. Любители природы могут наслаждаться близлежащими зелеными зонами и пешеходными маршрутами, а поля для гольфа и развлекательные заведения находятся всего в нескольких минутах езды.
Отличная транспортная доступность и ключевые расстояния
Пляжи Гуардамар-дель-Сегура находятся примерно в 9 км. Поля для гольфа La Finca Golf и La Marquesa Golf находятся примерно в 6 км от комплекса. Аквапарки в Рохалесе и Торревьехе расположены примерно в 4 км и 12 км. Торговый центр Zenia Boulevard находится примерно в 17 км. Международный аэропорт Аликанте находится примерно в 35 км и предлагает регулярные рейсы по всей Европе.
Идеальный дом или возможность для инвестиций
Благодаря современному дизайну, отличному расположению и высокому спросу на аренду в этом районе, эти апартаменты идеально подходят для постоянного проживания, отдыха или выгодных инвестиций на побережье Коста-Бланка.
Свяжитесь с нами сегодня
Откройте для себя свои новые апартаменты в Бенихофаре. Свяжитесь с нами сейчас, чтобы получить дополнительную информацию или договориться о частном просмотре.