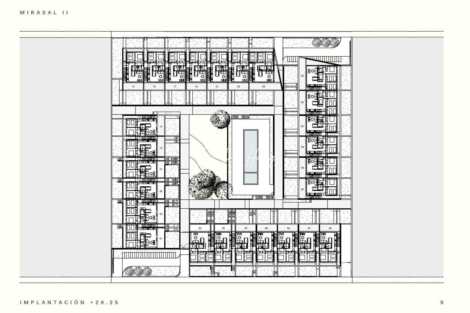
Torrevieja · Los Balcones Bungalow · новый

  • 84m2 m2 построен
  • 23m2 m2 участок
  • 3 спальни
  • 2 В ванных комнатах
  • да Бассейн
Бассейн: да
Communal pool
Near schools
Gated
Number of Parking Spaces: 1
Near Golf / Golf Resort Property
Near Commercial Center
Location: Coastal, Urbanisation
Useable Build Space: 80 Msq.
Beach: 3500 Meters
Parking - Space
Double Bedrooms: 3
Solarium: Yes
Air Conditioning: Pre-Installed
Terrace: 125 Msq.
Storage / Trastero
Класс энергопотребления: B

Вам интересно? Делать запрос

Responsable del tratamiento: Petra Hönig, Finalidad del tratamiento: Gestión y control de los servicios ofrecidos a través de la página Web de Servicios inmobiliarios, Envío de información a traves de newsletter y otros, Legitimación: Por consentimiento, Destinatarios: No se cederan los datos, salvo para elaborar contabilidad, Derechos de las personas interesadas: Acceder, rectificar y suprimir los datos, solicitar la portabilidad de los mismos, oponerse altratamiento y solicitar la limitación de éste, Procedencia de los datos: El Propio interesado, Información Adicional: Puede consultarse la información adicional y detallada sobre protección de datos Aquí.
Связаться через WhatsApp
Petra Hönig

Подписаться на рассылку

Хотите получать последние объявления о продаже недвижимости и специальные предложения?

facebook youtube twitter
WhatsApp