Nybyggede villaer med privat pool i Country Club de Mazarrón
Moderne villaer i et roligt boligområde
Oplev dette eksklusive projekt med villaer beliggende i Country Club de Mazarrón-området i Murcia. Beliggende i et roligt boligområde omgivet af natur, tilbyder denne beliggenhed den perfekte balance mellem ro og tilgængelighed. Country Club er kendt for sin afslappede atmosfære, sine brede veje og sin nærhed til både kysten og byen Mazarrón, hvilket gør det til et attraktivt valg til permanent ophold eller ferie.
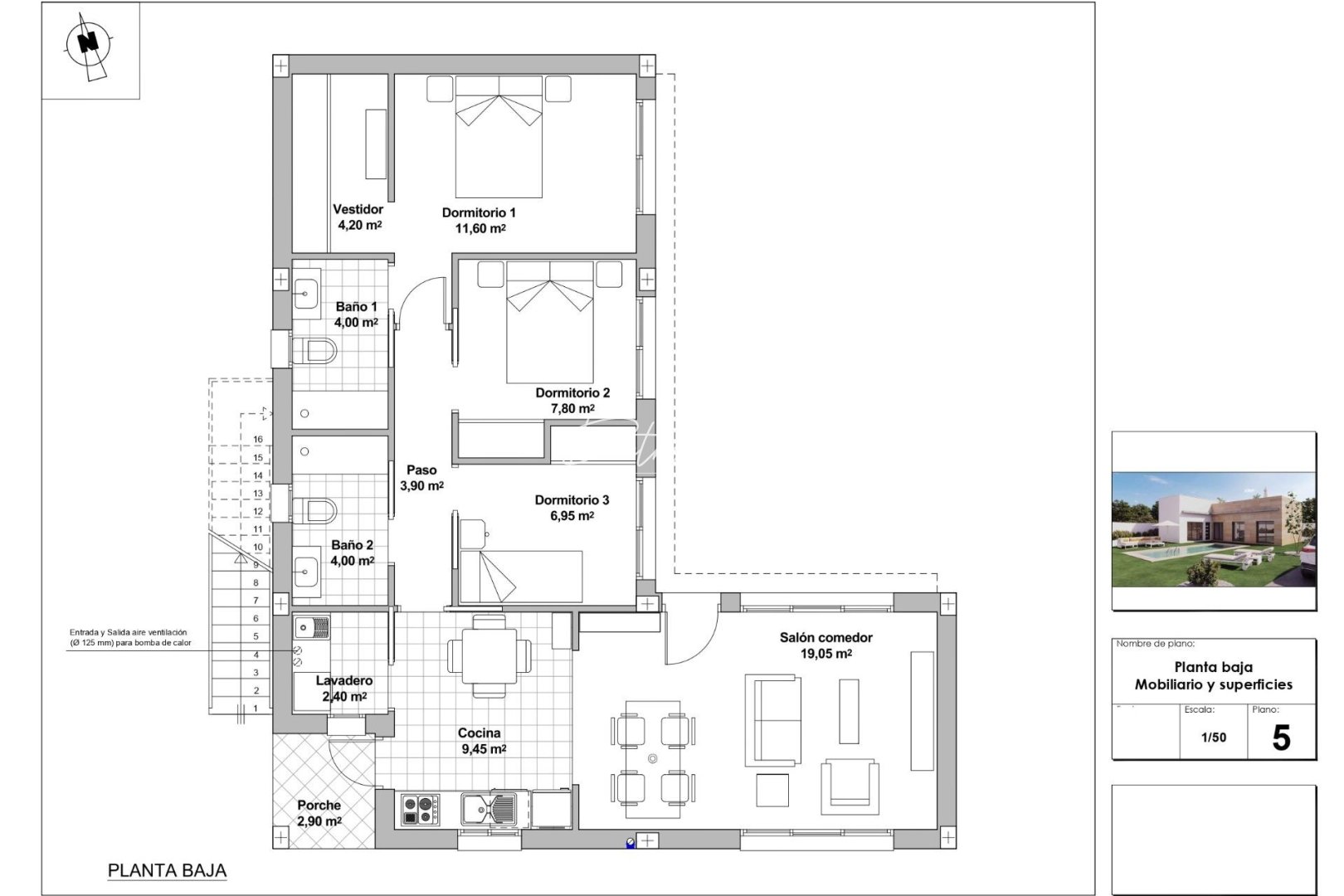
Design i ét plan med private udendørsarealer
Hver villa er omhyggeligt designet i ét plan, hvilket giver komfort og brugervenlighed. Indretningen omfatter tre store soveværelser og to badeværelser, hvoraf det ene er en suite. Det store soveværelse har et walk-in-closet. Det lyse, åbne opholdsområde kombinerer stue, spisestue og køkken med direkte adgang til terrassen og haven. De store vinduer lader naturligt lys strømme ind i hele huset og skaber en perfekt forbindelse mellem indendørs og udendørs liv.
Den private have har en privat swimmingpool og en terrasse, der er ideel til solbadning eller udendørs spisning. Hver ejendom har også parkering på grunden, hvilket garanterer komfort og sikkerhed.
Privat solterrasse med fri udsigt
Den private solterrasse på taget, som er tilgængelig via en udvendig trappe, tilbyder et ekstra udendørs område, hvor man kan nyde det middelhavsklima året rundt. Solterrassen er udstyret med vand- og strømforbindelser, hvilket muliggør fremtidig installation af et sommerkøkken, en udendørs bruser eller et opholdsområde. Dette hævede område er perfekt til at slappe af, modtage gæster eller nyde den panoramiske udsigt over det omkringliggende landskab.
Høj kvalitet og moderne komfort
Disse nybyggede villaer er bygget med materialer af høj kvalitet og moderne finish for at sikre holdbarhed og komfort. Blandt faciliteterne er indbyggede skabe i alle soveværelser, forudinstalleret kanaliseret aircondition og forudinstalleret køkken, hvilket giver køberne mulighed for at tilpasse interiøret efter deres personlige stil. Det moderne design og den praktiske indretning gør disse boliger velegnede som permanent bopæl, feriebolig eller smart investering.
Bekvem beliggenhed tæt på Mazarrón og kysten
Bebyggelsen ligger ca. 9 km fra strandene i Mazarrón og kun 5 km fra byen Mazarrón, hvor man finder alle de nødvendige faciliteter, herunder butikker, restauranter, lægehuse og skoler. Området har også nem adgang til motorvejen, hvilket giver gode forbindelser til nærliggende byer og landsbyer.
Vigtige afstande til seværdigheder
Byen Mazarrón: 5 km
Strandene i Mazarrón og Bolnuevo: 9 km
Mazarrón marina: 14 km
Golfbaner: 20 km
Murcia Corvera lufthavn: 45 km
Cartagena by: 35 km
Dit nye hjem på Costa Cálida
Nyd privatliv, komfort og friluftsliv i en af disse eksklusive nybyggede villaer i Country Club Mazarrón. Kontakt os i dag for at få mere information eller aftale en besigtigelse og sikre dig din plads i dette attraktive boligområde.