Newly built detached villas with private pools in the Mazarrón Country Club
Modern villas in a quiet residential setting
Discover this exclusive development of detached villas located in the Mazarrón Country Club area of Murcia. Set in a quiet residential setting and surrounded by nature, this location offers the perfect balance between tranquillity and accessibility. The Country Club is known for its relaxed atmosphere, wide streets and proximity to both the coast and the town of Mazarrón, making it an attractive option for permanent living or holidaying.
Single-storey design with private outdoor spaces
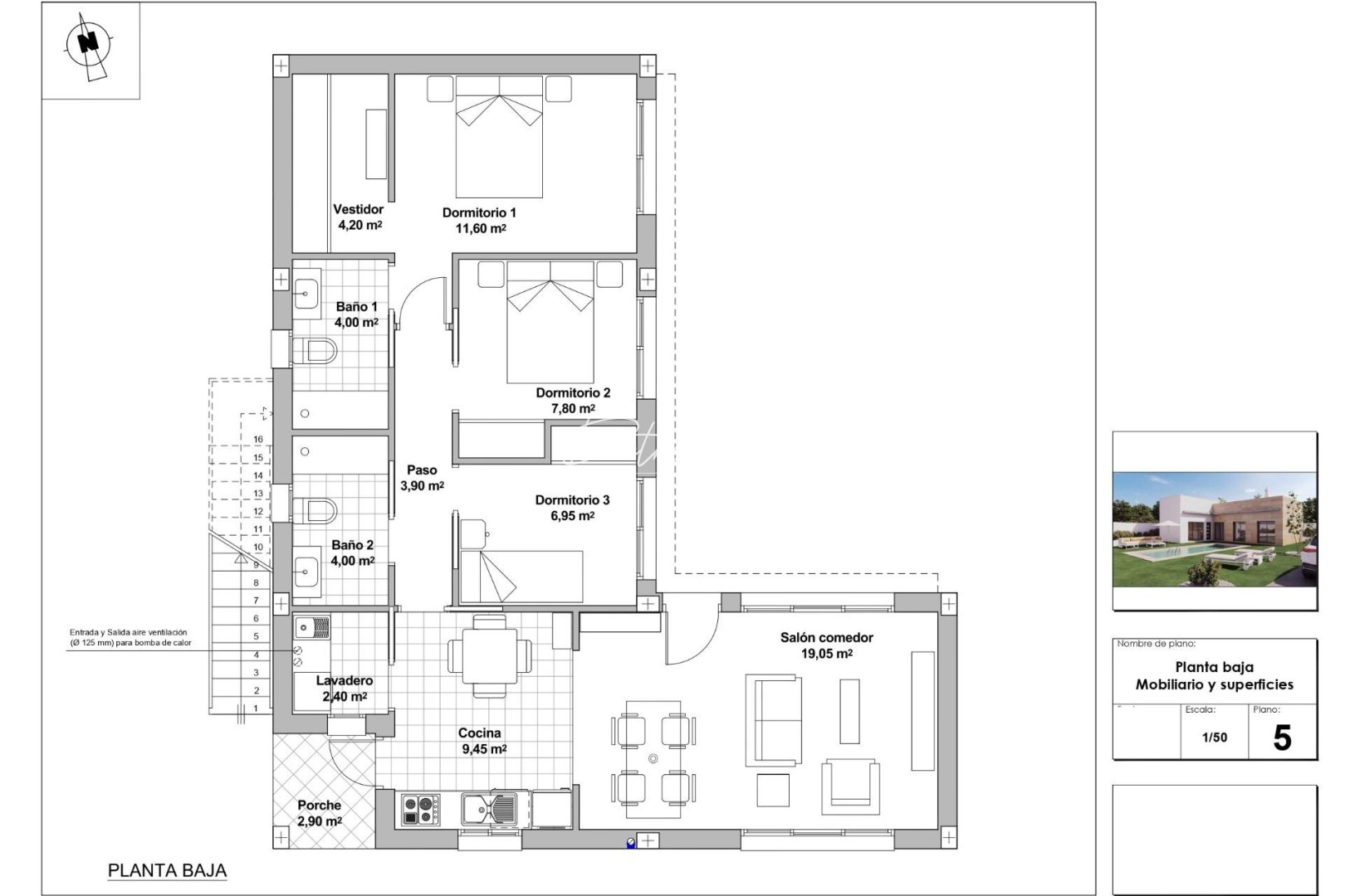
Each villa is carefully designed on a single storey, offering comfort and ease of living. The layout includes three spacious bedrooms and two bathrooms, one of which is en suite. The master bedroom has a walk-in wardrobe. The bright open-plan living area combines the lounge, dining room and kitchen, with direct access to the terrace and garden. Large windows allow natural light to flow throughout the house and create a seamless connection between indoor and outdoor living.
The private garden features a private swimming pool and a terrace ideal for sunbathing or al fresco dining. Each property also includes parking within the plot, ensuring convenience and security.
Private solarium with open views
Accessible via an external staircase, the private rooftop solarium offers an additional outdoor area to enjoy the Mediterranean climate all year round. The solarium is equipped with water and electricity connections, allowing for the future installation of a summer kitchen, outdoor shower or relaxation area. This elevated space is perfect for relaxing, entertaining guests or enjoying the panoramic views of the surrounding landscape.
High-quality finishes and modern comfort
These newly built villas are constructed with high-quality materials and modern finishes to ensure durability and comfort. Features include fitted wardrobes in all bedrooms, pre-installation for ducted air conditioning, and pre-installation for the kitchen, offering buyers the opportunity to customise the interior to suit their personal style. The contemporary design and practical layout make these homes suitable as a permanent residence, holiday home or smart investment.
Convenient location near Mazarrón and the coast
The development is located approximately 9 km from the beaches of Mazarrón and only 5 km from the town of Mazarrón, where all essential amenities can be found, including shops, restaurants, medical centres and schools. The area also benefits from easy access to the motorway, allowing for smooth connections to nearby towns and cities.
Key distances to points of interest
Town of Mazarrón: 5 km
Beaches of Mazarrón and Bolnuevo: 9 km
Mazarrón marina: 14 km
Golf courses: 20 km
Murcia Corvera Airport: 45 km
Cartagena town: 35 km
Your new home on the Costa Cálida
Enjoy privacy, comfort and outdoor living in one of these exclusive new-build villas at Country Club Mazarrón. Contact us today for more information or to arrange a viewing and secure your place in this attractive residential area.