Un nouveau projet de construction en trois phases, débutant par la phase 11 au sud. Cette phase comprend six villas modernes et très spacieuses.
Le projet se situe dans le charmant quartier de Dolores.
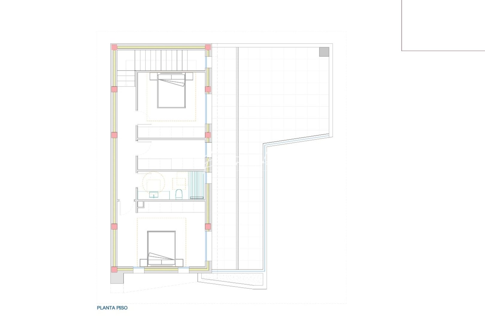
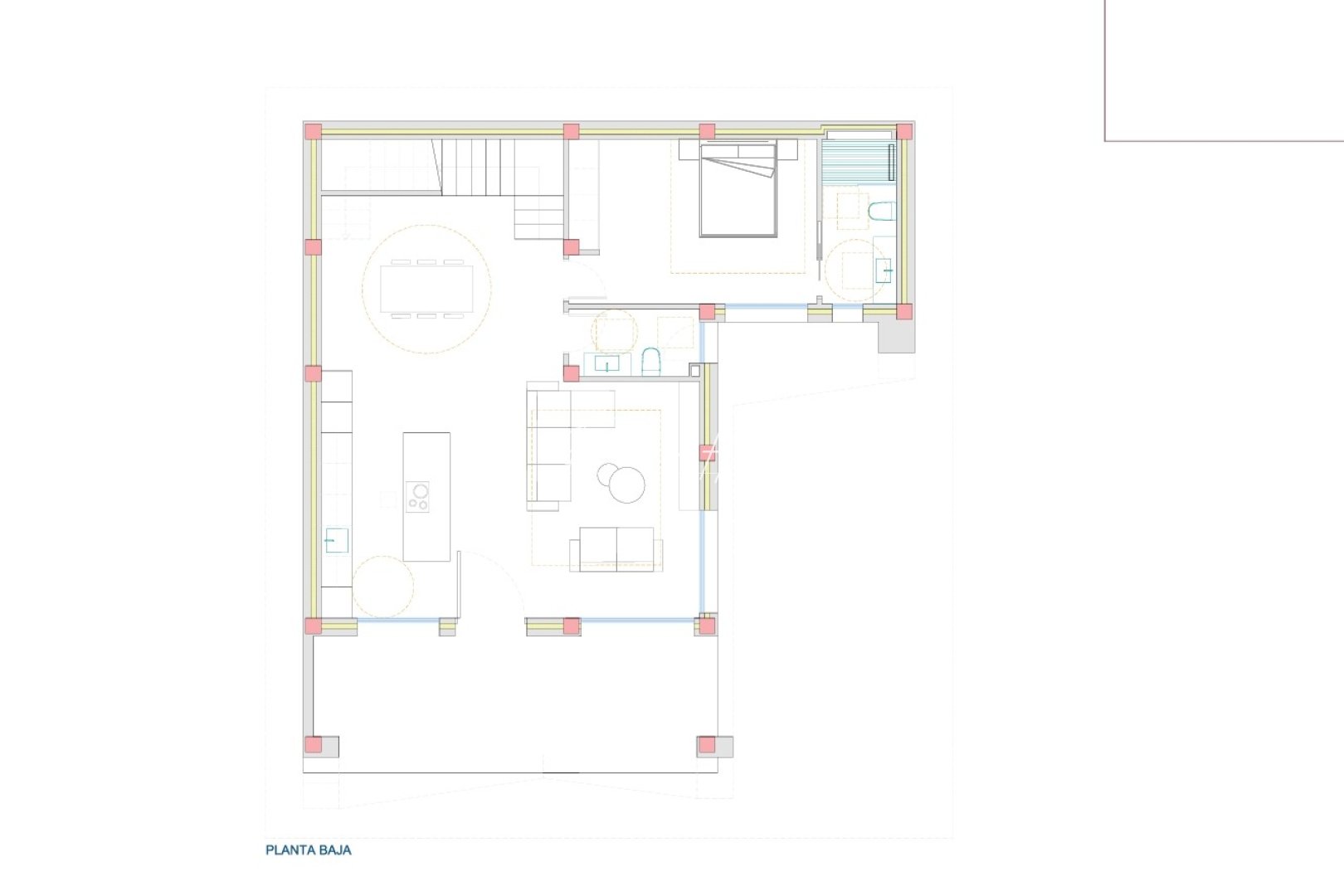
Au rez-de-chaussée, vous trouverez un vaste séjour, une belle cuisine avec îlot central, un coin TV spacieux et agréable, ainsi que des toilettes invités. La maison dispose de trois chambres doubles : une au rez-de-chaussée avec salle de bains privative et deux à l'étage, qui comprend également une salle de bains familiale et une buanderie.
La surface habitable totale est d'environ 165 m², sur un terrain d'environ 260 m², offrant un espace généreux pour un confort optimal.
La villa possède également un sous-sol (cave technique) livré brut, mais pouvant être aménagé en option.
La maison comprend une belle cuisine ouverte avec électroménager intégré et coin repas, un séjour confortable et spacieux, des chambres avec placards intégrés, et bien plus encore. L'agencement spacieux et lumineux offre une vue agréable sur la terrasse et le parc municipal. Outre sa terrasse au rez-de-chaussée, la villa dispose également d'une spacieuse terrasse au premier étage et d'une piscine privée, idéale pour se détendre ou recevoir, ainsi que d'un parking privé.
Toutes les fenêtres en aluminium sont équipées de volets roulants électriques et la maison est dotée d'une porte blindée. La climatisation est installée au rez-de-chaussée et au premier étage, ce qui la rend habitable immédiatement.