Et nytt byggeprosjekt i tre faser, med start i fase 11 på sørsiden. Denne fasen består av seks svært romslige og moderne villaer.
Cornerplot 435.000€
Prosjektet ligger i det sjarmerende Dolores-nabolaget.
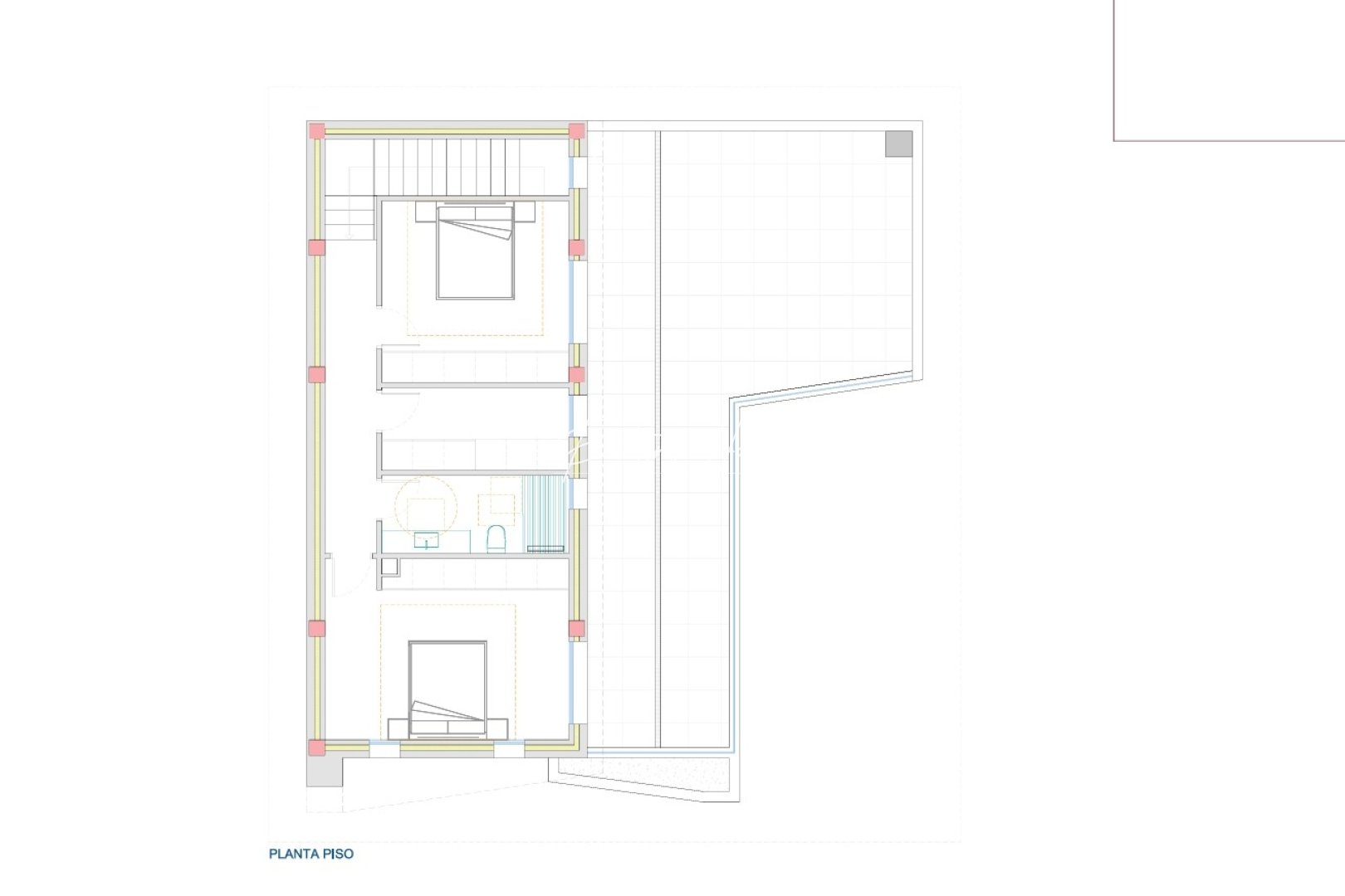
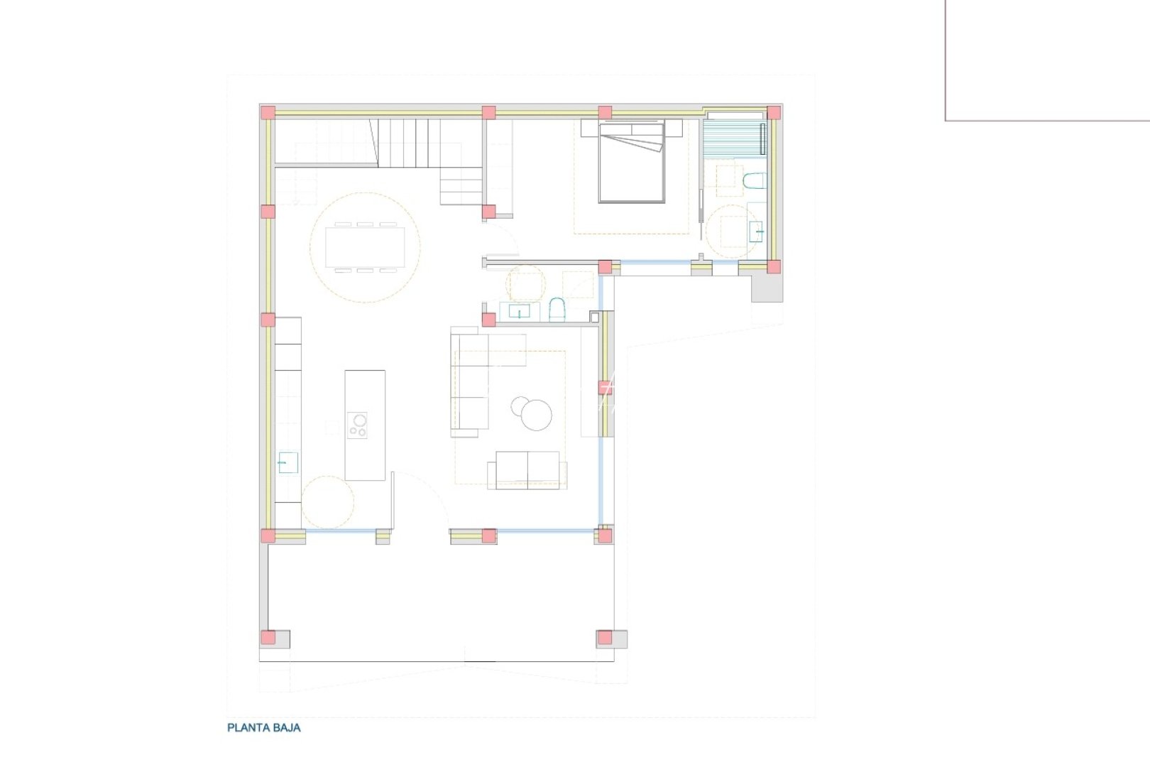
I første etasje finner vi en romslig stue, et vakkert kjøkken med kokeøy, et herlig, romslig TV-hjørne og et gjestetoalett. Huset har tre doble soverom som standard: ett i første etasje med eget bad og to i andre etasje, som også inkluderer et familiebad og et vaskerom.
Det totale bebygde arealet er omtrent 165 kvadratmeter, med en tomtestørrelse på omtrent 260 kvadratmeter, noe som gir god plass til komfortabel boareal.
Villaen har også en kjeller (teknisk kjeller) som leveres uferdig, men kan ferdigstilles mot et tillegg i prisen.
Huset har et vakkert åpent kjøkken med integrerte hvitevarer og frokostbar, en koselig og romslig stue, soverom med innebygde garderober og mye mer. Den vakkert romslige planløsningen gir rikelig med naturlig lys og en hyggelig utsikt over den vakre terrassen og byparken. I tillegg til terrassen i første etasje, kan villaen også skilte med en romslig terrasse i første etasje og luksusen av et privat basseng, perfekt for avslapning eller underholdning, samt parkering på stedet.
Alle aluminiumsvinduer er utstyrt med elektriske skodder, og huset har en forsterket sikkerhetsdør. Klimaanlegg er installert i både første og andre etasje, noe som gjør det klart for umiddelbar innflytting.