Et nyt byggeprojekt i tre faser, startende med Fase 11 på sydsiden. Denne fase består af seks meget rummelige og moderne villaer.
Cornerplot 435.000€
Projektet er beliggende i det charmerende Dolores-kvarter.
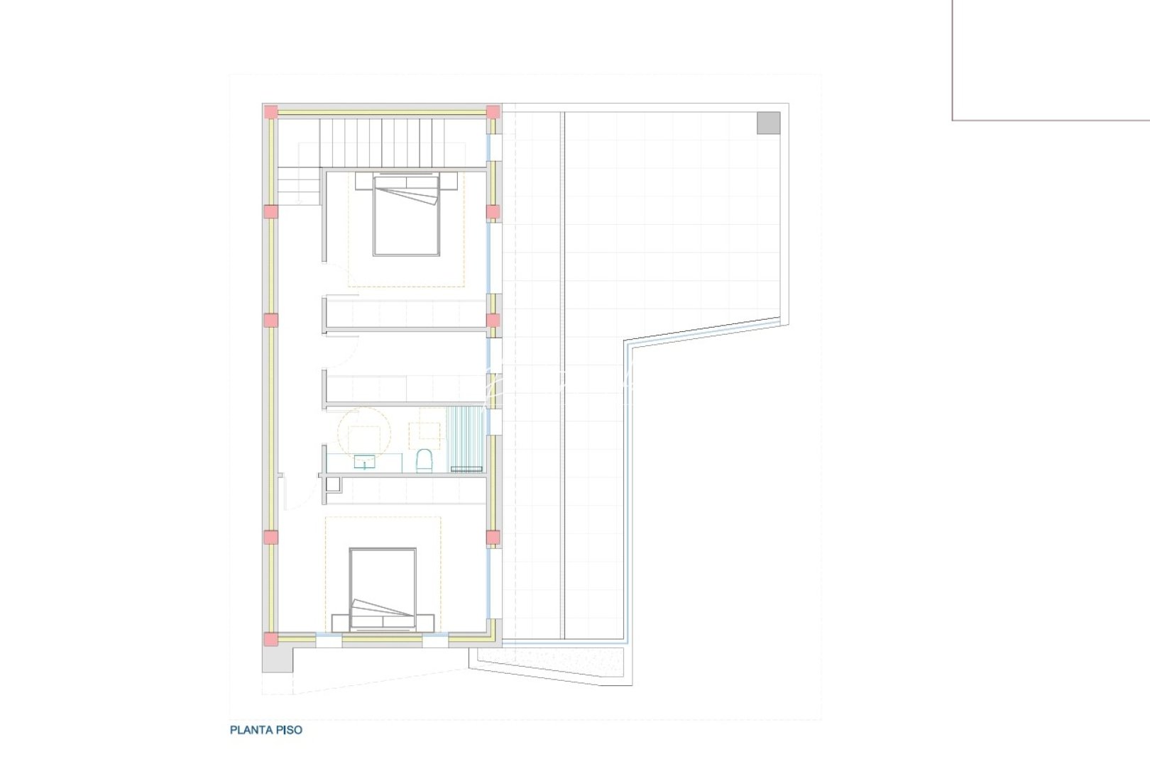
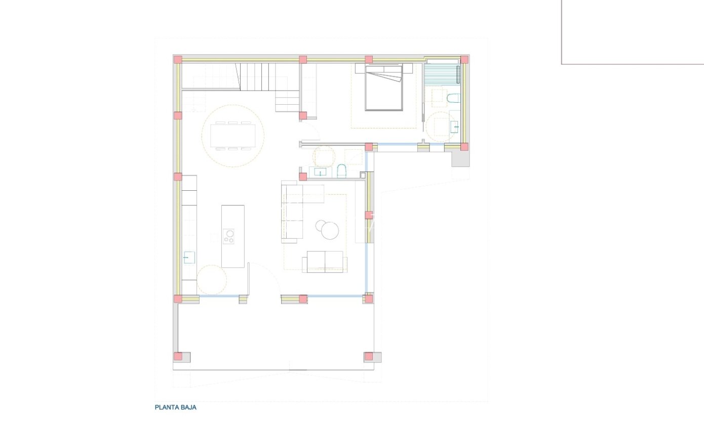
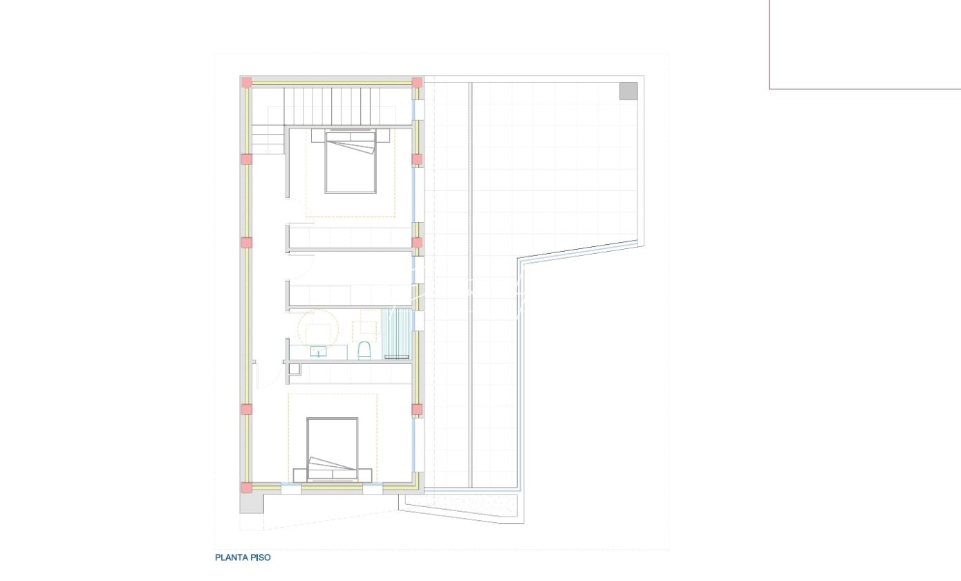
I stueetagen finder vi en rummelig stue, et smukt køkken med kogeø, et dejligt, rummeligt tv-hjørne og et gæstetoilet. Huset har som standard tre dobbeltværelser: et i stueetagen med eget badeværelse og to på første sal, som også inkluderer et familiebadeværelse og et vaskerum.
Det samlede bebyggede areal er cirka 165 kvadratmeter, med en grundstørrelse på cirka 260 kvadratmeter, hvilket tilbyder rigelig plads til komfortabel ophold.
Villaen har også en kælder (teknisk kælder), som leveres uindrettet, men kan færdiggøres mod et ekstra gebyr.
Huset har et smukt åbent køkken med integrerede apparater og en morgenmadsbar, en hyggelig og rummelig stue, soveværelser med indbyggede skabe og meget mere. Den smukt rummelige planløsning giver rigeligt naturligt lys og en behagelig udsigt over den smukke terrasse og byparken. Udover terrassen i stueetagen kan villaen også prale af en rummelig terrasse på første sal og den luksuriøse privat pool, perfekt til afslapning eller underholdning, samt parkering på stedet.
Alle aluminiumsvinduer er udstyret med elektriske skodder, og huset har en forstærket sikkerhedsdør. Der er installeret aircondition i både stueetagen og første sal, hvilket gør det klar til øjeblikkelig indflytning.