Maisons neuves exclusives en bord de mer à vendre à Mojácar, Costa de Almería
Une vie boutique en bord de mer dans l'un des quartiers les plus prisés de Mojácar
Découvrez un ensemble résidentiel boutique exceptionnel composé de seulement 10 maisons exclusives situées en bord de mer dans le quartier de La Mena à Mojácar. Cet emplacement privilégié offre un accès direct, via le Paseo del Mediterraneo, aux plages de sable doré et aux eaux cristallines de la mer Méditerranée. Entouré de clubs de plage, de restaurants et d'une atmosphère côtière paisible, ce quartier est idéal pour ceux qui recherchent un style de vie raffiné en bord de mer. Mojácar Playa et le Parador de Mojácar se trouvent à seulement 3 km, offrant un large éventail de services, de divertissements et de beautés naturelles.
Des maisons élégantes conçues pour le confort et la vue sur la mer
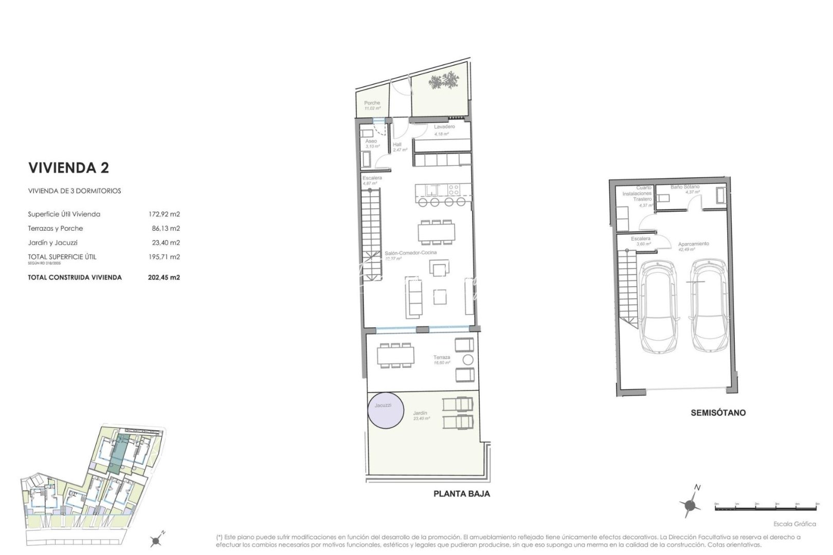
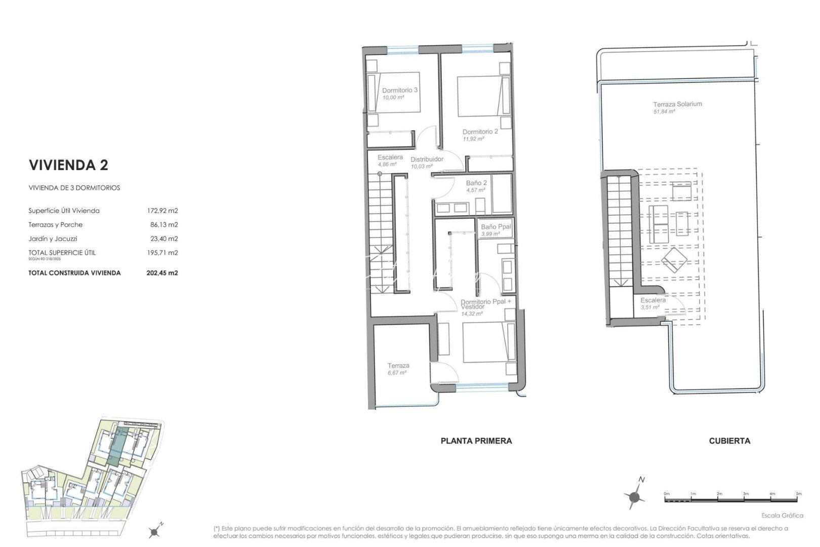
Ce projet immobilier unique propose des propriétés de trois chambres et trois salles de bains disponibles en deux configurations. Les acheteurs peuvent choisir entre quatre maisons de ville avec solarium privé et jacuzzi en option, ou six villas jumelées avec chacune leur propre piscine privée. Toutes les maisons comprennent un grand garage en sous-sol pour deux voitures, des terrasses spacieuses et de grands jardins qui maximisent le plaisir de l'extérieur et la vue sur la mer.
Spécifications de haute qualité et options de personnalisation
Chaque propriété est équipée d'un système de climatisation aérothermique entièrement installé, garantissant une efficacité énergétique et un confort maximum tout au long de l'année. Les cuisines sont non meublées, ce qui permet aux propriétaires de personnaliser leur design, avec un projet de décoration complet inclus. Les caractéristiques supplémentaires comprennent la préinstallation pour la technologie domotique, une porte d'entrée renforcée et des matériaux de construction de haute qualité qui améliorent la sécurité, le design et la durabilité.
Emplacement privilégié avec une excellente connectivité
Situé dans un cadre paisible en bord de mer, le complexe bénéficie d'un accès pratique aux principales destinations de la Costa de Almería. Mojácar Pueblo, avec ses rues pittoresques blanchies à la chaux, n'est qu'à quelques minutes en voiture. Les points d'intérêt populaires comprennent :
Mojácar Playa 3 km
Parador de Mojácar 3 km
Marina de Garrucha 12 km
Campo de golf Marina Golf 6 km
Aeropuerto de Almería 80 km
Aeropuerto de Murcia Corvera 150 km
Assurez-vous une maison en première ligne de plage à Mojácar
Découvrez un style de vie où la mer fait partie de votre quotidien et où le luxe se mêle à la sérénité du littoral. Que vous recherchiez une résidence secondaire, une résidence permanente ou un investissement exclusif, ce complexe boutique en bord de mer offre une valeur inégalée. Contactez-nous dès aujourd'hui pour obtenir des informations supplémentaires ou organiser une visite.
317