Exklusive Neubau-Strandhäuser zum Verkauf in Mojácar, Costa de Almería
Boutique-Wohnen am Meer in einer der begehrtesten Gegenden von Mojácar
Entdecken Sie eine außergewöhnliche Wohnanlage mit nur 10 exklusiven Häusern direkt am Strand der Gegend La Mena in Mojácar. Diese privilegierte Lage bietet direkten Zugang über den Paseo del Mediterraneo zu den goldenen Sandstränden und dem kristallklaren Wasser des Mittelmeers. Umgeben von Strandclubs, Restaurants und einer ruhigen Küstenatmosphäre ist diese Gegend ideal für diejenigen, die einen raffinierten Lebensstil am Meer suchen. Mojácar Playa und der Parador de Mojácar sind nur 3 km entfernt und bieten eine breite Palette an Dienstleistungen, Unterhaltung und natürlicher Schönheit.
Elegante Häuser, die für Komfort und Meerblick konzipiert sind
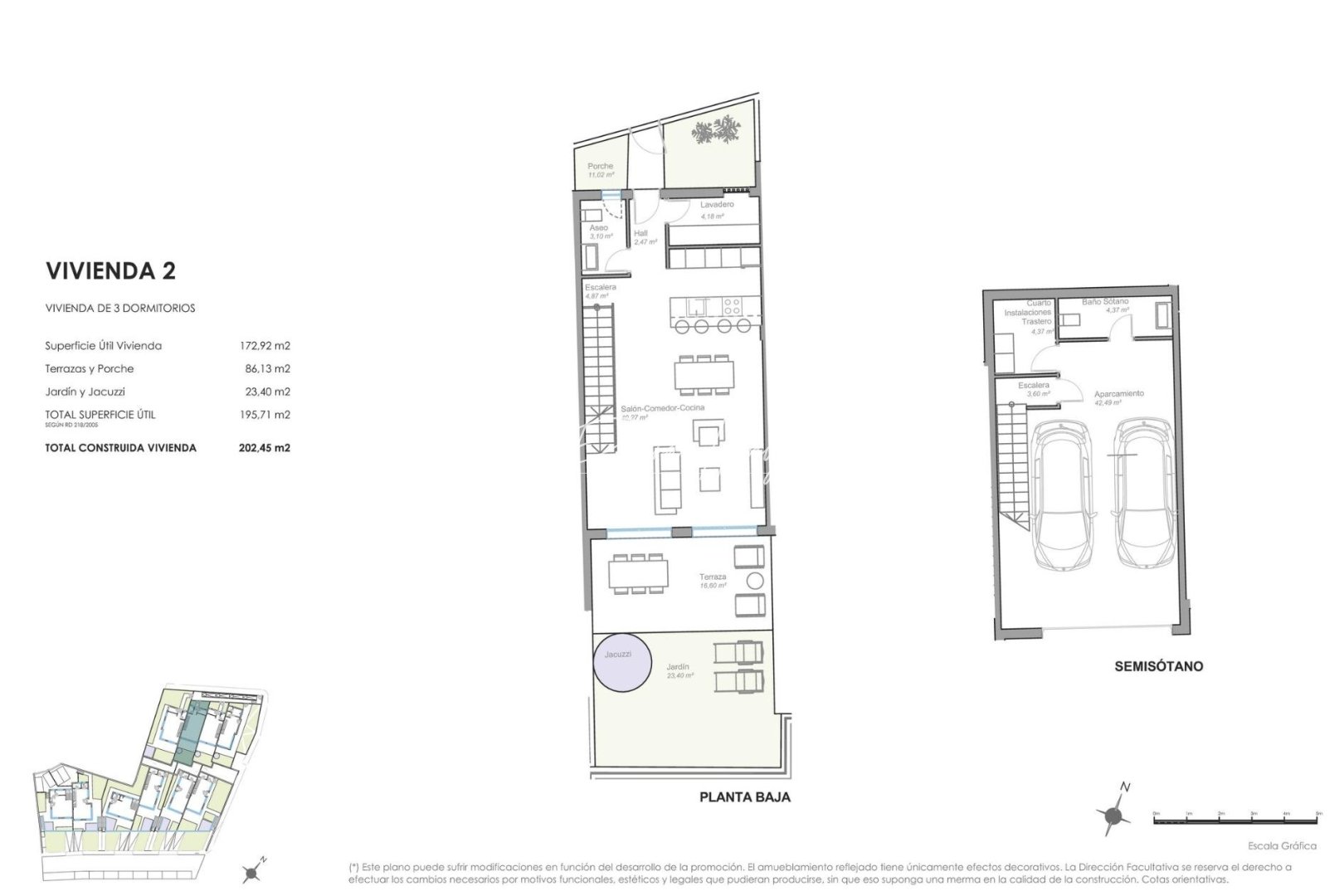
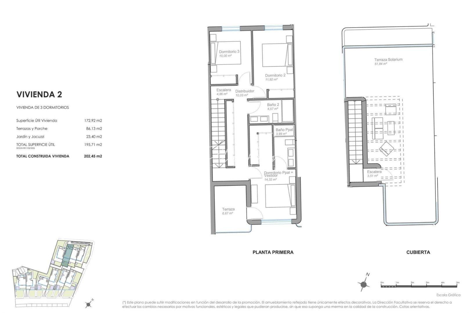
Diese einzigartige Wohnanlage bietet Immobilien mit drei Schlafzimmern und drei Badezimmern in zwei Konfigurationen. Käufer können zwischen vier Reihenhäusern mit privatem Solarium und optionalem Whirlpool oder sechs Doppelhaushälften mit jeweils eigenem Swimmingpool wählen. Alle Häuser verfügen über eine große Tiefgarage für zwei Autos, großzügige Terrassen und großzügige Gartenbereiche, die den Genuss im Freien und den Meerblick maximieren.
Hochwertige Ausstattung und individuelle Gestaltungsmöglichkeiten
Jede Immobilie ist mit einer vollständig installierten aerothermischen Klimaanlage ausgestattet, die das ganze Jahr über maximale Energieeffizienz und Komfort gewährleistet. Die Küchen sind unmöbliert, sodass die Eigentümer ihr Design individuell gestalten können. Ein komplettes Dekorationsprojekt ist im Preis inbegriffen. Zu den weiteren Ausstattungsmerkmalen gehören die Vorinstallation für Smart-Home-Technologie, eine verstärkte Eingangstür und hochwertige Baumaterialien, die Sicherheit, Design und Langlebigkeit verbessern.
Erstklassige Lage mit ausgezeichneter Anbindung
Das Projekt befindet sich in ruhiger Strandlage und bietet bequemen Zugang zu den wichtigsten Zielen entlang der Costa de Almería. Mojácar Pueblo mit seinen malerischen weiß getünchten Straßen ist nur eine kurze Autofahrt entfernt. Beliebte Sehenswürdigkeiten sind unter anderem:
Mojácar Playa 3 km
Parador de Mojácar 3 km
Marina de Garrucha 12 km
Golfplatz Marina Golf 6 km
Flughafen Almería 80 km
Flughafen Murcia Corvera 150 km
Sichern Sie sich Ihr Strandhaus in Mojácar
Erleben Sie einen Lebensstil, bei dem das Meer Teil Ihres Alltags wird und Luxus mit der Ruhe der Küste verschmilzt. Ob Sie einen Urlaubsort, einen dauerhaften Wohnsitz oder eine exklusive Investition suchen, diese Boutique-Anlage am Strand bietet Ihnen einen unvergleichlichen Mehrwert. Kontaktieren Sie uns noch heute, um weitere Informationen zu erhalten oder einen Besichtigungstermin zu vereinbaren.
317