Eksklusive nybyggede strandhuse til salg i Mojácar, Costa de Almería
Boutique-boliger ved havet i et af Mojácars mest eftertragtede områder
Oplev et enestående boligkompleks bestående af kun 10 eksklusive boliger beliggende ved stranden i La Mena-området i Mojácar. Denne privilegerede beliggenhed tilbyder direkte adgang over Paseo del Mediterraneo til Middelhavets gyldne sand og krystalklare vand. Omgivet af strandklubber, restauranter og en fredelig kystatmosfære er dette område ideelt for dem, der søger en raffineret livsstil ved havet. Mojácar Playa og Parador de Mojácar ligger kun 3 km væk og tilbyder en bred vifte af tjenester, underholdning og naturlig skønhed.
Elegante boliger designet med komfort og havudsigt for øje
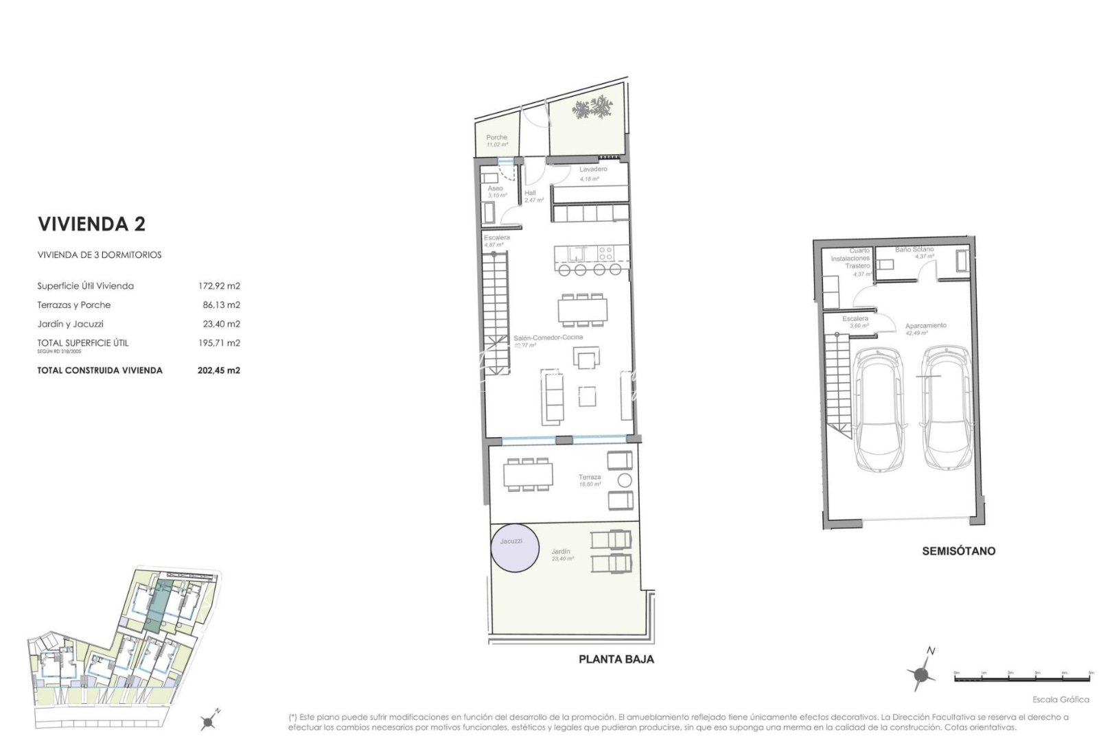
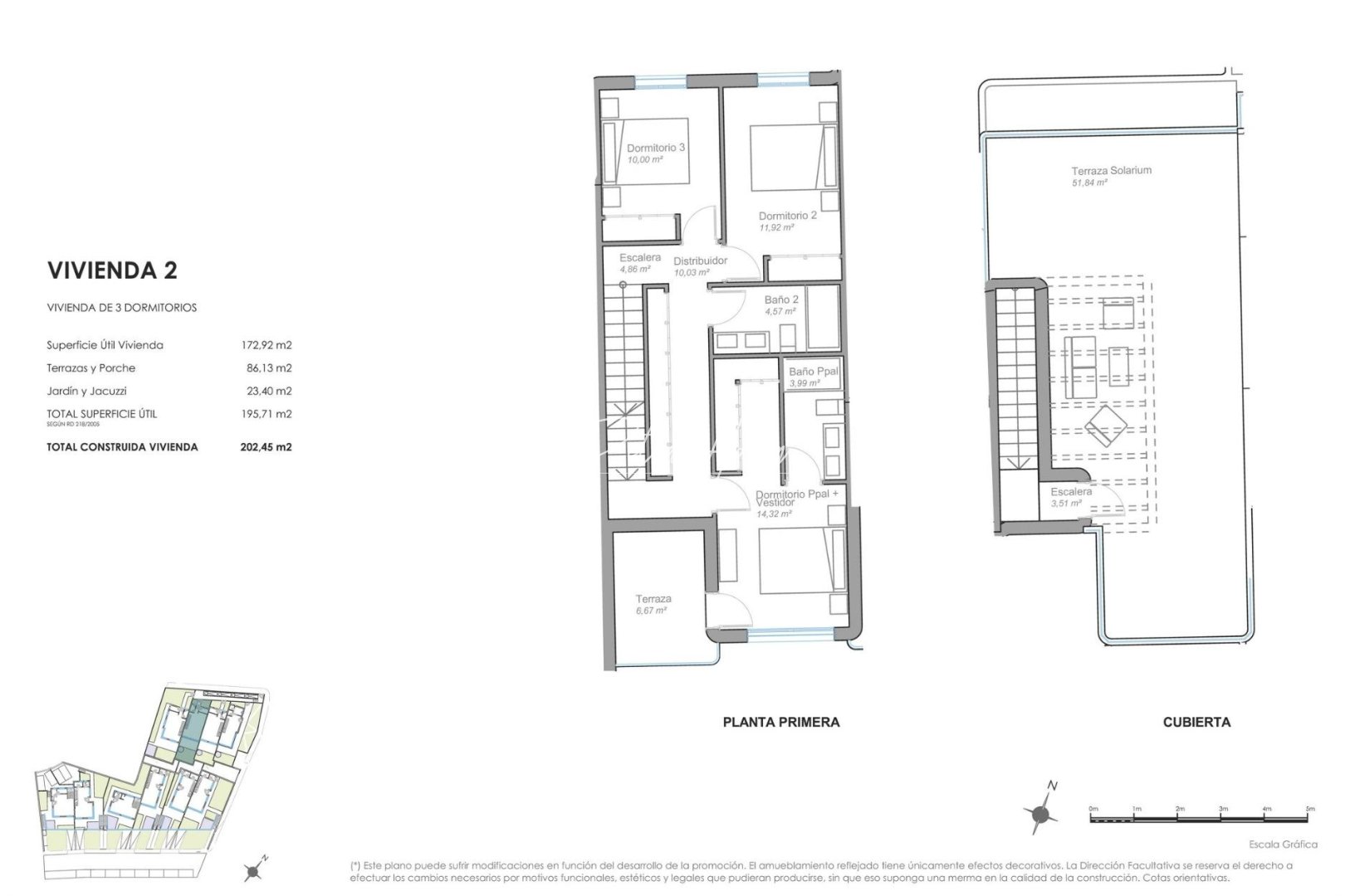
Dette unikke byggeri tilbyder boliger med tre soveværelser og tre badeværelser i to forskellige konfigurationer. Købere kan vælge mellem fire rækkehuse med privat solarium og valgfri jacuzzi eller seks dobbelthuse, hver med egen privat swimmingpool. Alle boliger har en stor kældergarage til to biler, rummelige terrasser og store haveområder, der maksimerer udendørs nydelse og havudsigt.
Højkvalitetsspecifikationer og tilpasningsmuligheder
Hver ejendom er udstyret med et fuldt installeret aerotermisk klimaanlæg, der sikrer maksimal energieffektivitet og komfort hele året rundt. Køkkenerne leveres umøblerede, så ejerne kan tilpasse deres design, og der medfølger et komplet indretningsprojekt. Yderligere funktioner omfatter forinstallation til smart hjem-teknologi, forstærket indgangsdør og byggematerialer af høj kvalitet, der forbedrer sikkerheden, designet og holdbarheden.
Førsteklasses beliggenhed med fremragende forbindelser
Beliggende i rolige omgivelser ved stranden har bebyggelsen nem adgang til vigtige destinationer langs Costa de Almería. Mojácar Pueblo med sine maleriske hvidkalkede gader ligger kun en kort køretur væk. Populære seværdigheder inkluderer:
Mojácar Playa 3 km
Parador de Mojácar 3 km
Marina de Garrucha 12 km
Campo de golf Marina Golf 6 km
Aeropuerto de Almería 80 km
Aeropuerto de Murcia Corvera 150 km
Sikr dig dit hjem ved stranden i Mojácar
Oplev en livsstil, hvor havet bliver en del af din hverdag, og luksus smelter sammen med kystens ro. Uanset om du er på udkig efter et feriested, en permanent bolig eller en eksklusiv investering, tilbyder dette boutique-byggeri ved stranden en uovertruffen værdi. Kontakt os i dag for at modtage yderligere information eller aftale en fremvisning.
317