Exklusiva nybyggda strandnära bostäder till salu i Mojácar, Costa de Almería
Boutique-boende vid havet i ett av Mojácars mest eftertraktade områden
Upptäck ett exceptionellt bostadsområde bestående av endast 10 exklusiva bostäder belägna vid stranden i området La Mena i Mojácar. Denna privilegierade miljö erbjuder direkt tillgång över Paseo del Mediterraneo till den gyllene sanden och det kristallklara vattnet i Medelhavet. Området är omgivet av strandklubbar, restauranger och en lugn kustatmosfär och är perfekt för dig som söker en raffinerad livsstil vid havet. Mojácar Playa och Parador de Mojácar ligger bara 3 km bort och erbjuder ett brett utbud av tjänster, underhållning och naturskönhet.
Eleganta bostäder designade för komfort och havsutsikt
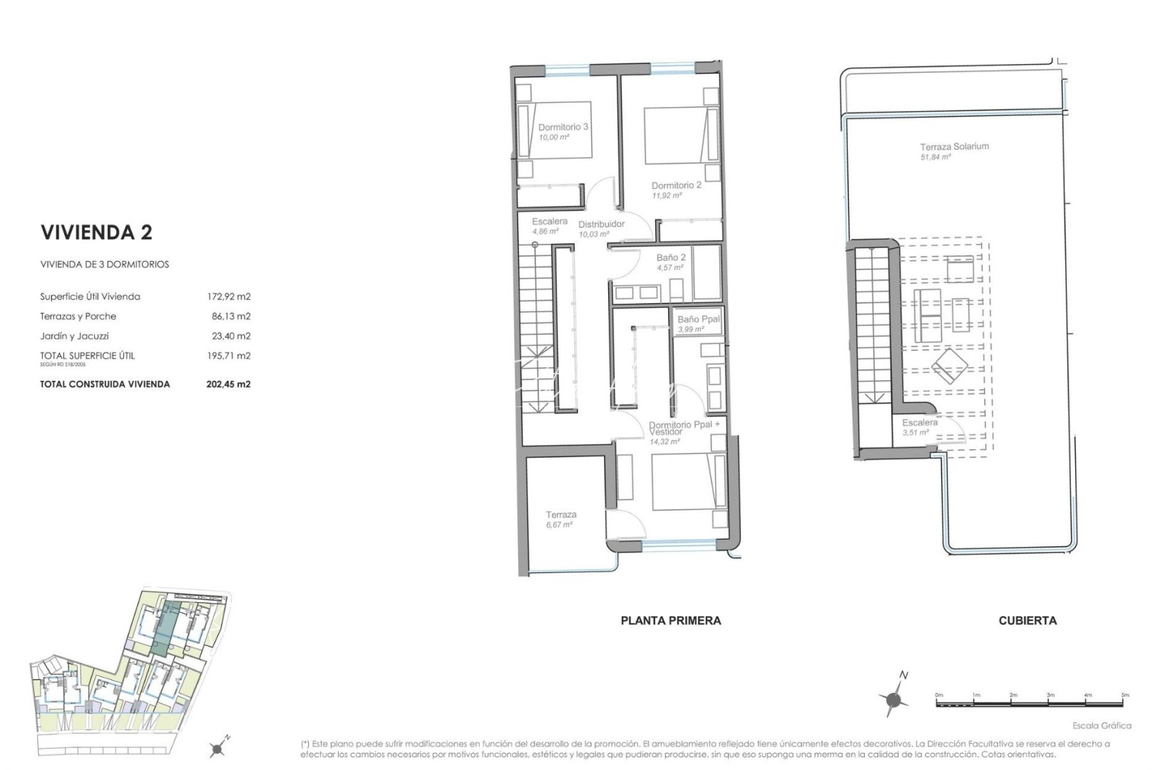
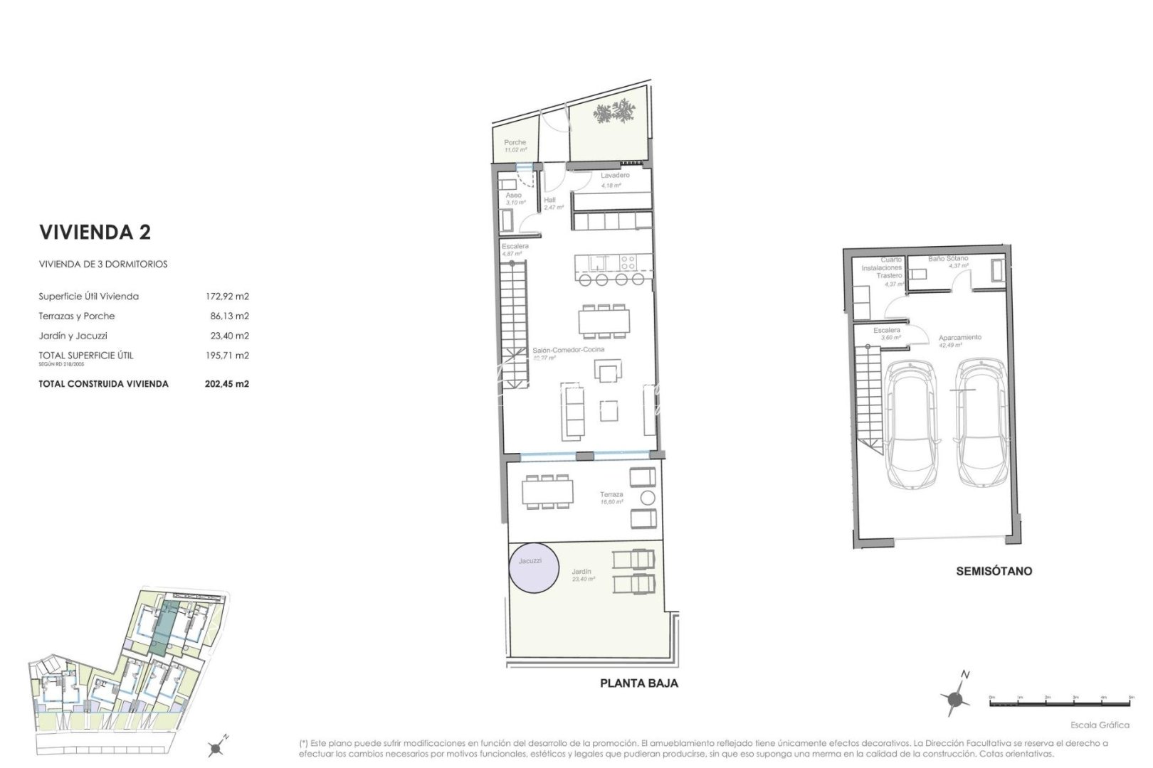
Detta unika projekt erbjuder bostäder med tre sovrum och tre badrum i två olika konfigurationer. Köpare kan välja mellan fyra radhus med privat solarium och jacuzzi som tillval, eller sex parhus med egen privat pool. Alla bostäder har ett stort garage i källaren för två bilar, rymliga terrasser och generösa trädgårdsytor som maximerar utomhusnjutningen och havsutsikten.
Högkvalitativa specifikationer och anpassningsmöjligheter
Varje fastighet är utrustad med ett fullt installerat aerotermiskt luftkonditioneringssystem som garanterar maximal energieffektivitet och komfort under hela året. Köken är omöblerade, vilket gör det möjligt för ägarna att anpassa sin design, med ett komplett inredningsprojekt inkluderat. Ytterligare funktioner inkluderar förinstallation för smart hemteknik, förstärkt entrédörr och högkvalitativa byggmaterial som förbättrar säkerhet, design och hållbarhet.
Utmärkt läge med utmärkta kommunikationer
Beläget i en lugn strandmiljö har området bekväm tillgång till viktiga destinationer längs Costa de Almería. Mojácar Pueblo, med sina pittoreska vitkalkade gator, ligger bara en kort bilresa bort. Populära sevärdheter inkluderar:
Mojácar Playa 3 km
Parador de Mojácar 3 km
Marina de Garrucha 12 km
Golfbanan Marina Golf 6 km
Almerías flygplats 80 km
Murcias flygplats Corvera 150 km
Säkra ditt strandnära hem i Mojácar
Upplev en livsstil där havet blir en del av din vardag och lyx smälter samman med kustens lugn. Oavsett om du letar efter en semesterbostad, en permanent bostad eller en exklusiv investering, erbjuder detta boutique-projekt vid stranden ett oöverträffat värde. Kontakta oss idag för att få ytterligare information eller boka en visning.
317